- トップページ
- 新築一戸建てをエリアから探す
- 流山市
- 古間木
- 古間木196街区
古間木196街区
情報更新日:2025/11/04 次回更新予定日:2025/11/18 取引条件有効期限:2025/11/18
所在地千葉県流山市古間木[周辺地図]
交 通つくばエクスプレス「流山セントラルパーク」駅徒歩10分





◆スマートプラスでは幅広いエリアで豊富な物件をご紹介可能♪
◆お客様のご希望に沿うお住まいも弊社ならきっと見つかります!
\住宅ローンならお任せください!最適な金融機関をご紹介いたします♪/
◆借入がある・転職したて・過去に金融事故があった・他社様でダメだった・・・
◆スマートプラスにぜひ一度ご相談ください!通過実績多数ございます♪
\お客様のご都合に合わせてご見学可能!送り迎えもご相談ください♪/
◆当日はもちろん、お仕事終わりの夜間やスキマ時間など短時間でもご案内可能♪
◆ご自宅や最寄り駅などへのご送迎もお任せください!
すべての画像
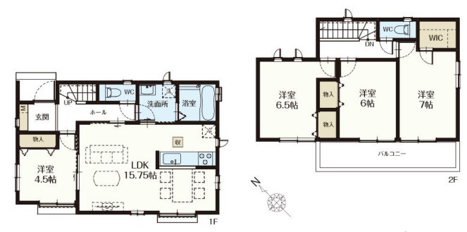
~落ち着いた雰囲気の外観~ ・環境にも馴染みやすく、汚れもあまり目立たない淡いグレーとホワイトのツートンカラーで落ち着いた印象に。 ・タイル柄がアクセントとなりオシャレに見せてくれます。 (A号棟)
~開放的なリビングイン階段~ ・ご家族のお出掛けや帰宅がわかるリビングイン階段。自然とコミュニケーションが増えますね。 ・家事をしながらリビング全体が見渡せるカウンターキッチンも魅力。 (A号棟)
~収納豊富なプランを採用~ ・ウォークインクローゼット、シューズインクロークなど収納豊富なプランを採用。 ・今のお住まいと収納力をぜひ比較してみてください。 (A号棟)
~カースペース2台以上確保~ ・各棟カースペースが2台以上ございますので、車通勤の方にもお勧めのプランとなっております。 ・余裕の敷地で余裕のある新生活をお過ごしいただけます。
~家族団らんにピッタリの広々リビング~ ・穏やかな陽だまりに包まれる居心地の良いLDKは、ご家族が集まる憩いのスペースに。 ・隣接の洋室を続き間として利用すれば21帖超の広々空間になります。 (A号棟)
~穏やかな陽の入るLDK~ ・大きな窓のあるLDKは陽当りも良好で明るい空間となっております。 ・ご家族団らんなど過ごす時間の多いLDKが明るいのは嬉しいポイントですね。 (A号棟)
~人気のカウンターキッチン~ ・キッチンには余計な柱が無いので、リビングが見渡せ開放感のある造りとなっております。 ・蛇口には浄水器が内蔵されるなど機能面でも優れたキッチンです。 (A号棟)
~使い勝手の良いシステムキッチン~ ・料理がしやすい設計のキッチンでお料理もはかどりますね。 ・もちろんキッチン下部は収納になっておりますので、フライパンなども収納可能です。 (A号棟)
~浴室乾燥機付きの浴室~ ・浴室には乾燥機が付いているので雨の日でも洗濯物を干すことが可能です。 ・水はけの良い床材など機能面も充実。マイクロバルなどオプションもご相談くださいませ。 (A号棟)
~明るい洗面スペース~ ・窓から明るい陽が入り、気持ちよく朝の支度ができますね。 ・使い勝手の良い三面鏡タイプのシャワー付き洗面化粧台。鏡の裏に収納があるので洗面台周りもスッキリ。 (A号棟)
~やはり便利なタンク式トイレ~ ・最近はタンクレストイレもございますが、タンク式の場合は停電時もお水を流すことが可能。 ・故障時なども比較的費用が安くなるなど、メリットが多くなります。 (A号棟)
~リビング横の洋室~ ・リビング横には開放感をプラスしてくれる洋室。収納付きで2面採光の明るい空間が広がります。 ・お子様のプレイルームやお昼寝、趣味のお部屋など、用途様々ですね。 (A号棟)
~WIC付きの洋室~ ・バルコニー側の大きな窓から穏やかな陽が差し込む明るい洋室はウォークインクローゼット付。 ・ゆとりある広さでご夫婦やご兄弟でもゆったりお過ごしいただけます。 (A号棟)
~ウォークインクローゼット~ ・衣類をハンガーに掛けたまま収納できるウォークインクローゼットは重宝しますね。 ・季節ものや小物類なども整理整頓しやすく生活空間が広がりますね。 (A号棟)
~収納豊富な洋室~ ・各居室に備え付けの収納をご用意。タンスなどを置く場合と比べ出っ張らないので部屋の中を有効のご活用いただけます。 ・収納の広さなどぜひ現地でご確認くださいませ。 (A号棟)
~2面採光の明るいお部屋~ ・洋室は2面採光とする事で穏やかな陽の入る明るい空間となっております。 ・くつろぎのプライベート時間を明るい空間で穏やかにお過ごしいただけます。 (A号棟)
~広々した「納戸」をご用意~ ・本来の用途である収納としてはもちろん、テレワークスペースとしてもご利用可能な納戸をご用意。 ・広さの感覚など、ぜひ現地でご体感くださいませ。 (A号棟)
~シューズインクロークのある玄関~ ・玄関横にシューズインクロークをご用意。 ・追加の靴置きとしてはもちろん、スキー・ゴルフなど趣味の用具の置場としてもご利用いただけます。 (A号棟)
~洗濯物も干しやすいバルコニー~ ・陽当たり良好な南側のバルコニーは2部屋から出入りができて毎日のお洗濯も快適。 ・テラス屋根等のオプションもお気軽にご相談くださいませ。 (A号棟)
~広々したお庭のある家~ ・余裕の敷地には広いお庭もご用意。 ・ガーデニングや安らぎの空間として、倉庫を置いたりと様々な活用が可能です。 ・人工芝の敷設などもお気軽にご相談くださいませ。 (A号棟)
~閑静な住宅街の立地~ ・周辺は閑静な住宅街となっておりますので、静かな暮らしをご実現いただけます。 ・前面道路の交通量も多くないので、小さなお子様がいるご家庭でもご安心ですね。 (A号棟)
~資金計画もお任せください~ ・ご見学はもちろん、住宅ローンなど資金面のご相談だけでもお気軽にどうぞ。 ・プロのアドバイザーがお客様にとって最適なプランをご提案させていただきます。 (A号棟)
~ゆとりあるカースペース2台~ ・セカンドカーや来客時にも困らないカースペース2台。自転車やバイクのおける余裕の広さです。 ・カーポートなどのオプションもお気軽にご相談くださいませ。 (A号棟)
~水回り集中プランを採用~ ・キッチン・洗面など水回りを集中させることで家事のしやすい間取。 ・日々の事なので家事導線もご見学の際にぜひチェックしてみてください。 (C号棟)
~収納豊富なプランを採用~ ・ウォークインクローゼット、シューズインクローク、納戸など収納豊富なプランを採用。 ・今のお住まいと収納力をぜひ比較してみてください。 (D号棟)
A号棟 ~落ち着いた雰囲気の外観~ ・環境にも馴染みやすく、汚れもあまり目立たない淡いグレーとホワイトのツートンカラーで落ち着いた印象に。 ・タイル柄がアクセントとなりオシャレに見せてくれます。
C号棟 ~落ち着いた雰囲気の外観~ ・環境にも馴染みやすく、汚れもあまり目立たない淡いい色味のツートンカラーで落ち着いた印象に。 ・タイル柄がアクセントとなりオシャレに見せてくれます。
D号棟 ~優しい印象の外観~ ・環境にも馴染みやすく、汚れもあまり目立たない淡いベージュ系の外観は落ち着いた雰囲気を醸し出してくれますね。 ・ナチュラルな色調が優しい印象を与えてくれます。
A号棟 ~開放的なリビングイン階段~ ・ご家族のお出掛けや帰宅がわかるリビングイン階段。自然とコミュニケーションが増えますね。 ・家事をしながらリビング全体が見渡せるカウンターキッチンも魅力。
C号棟 ~穏やかな陽の入るLDK~ ・大きな窓のあるLDKは陽当りも良好で明るい空間となっております。 ・ご家族団らんなど過ごす時間の多いLDKが明るいのは嬉しいポイントですね。
D号棟 ~穏やかな陽の入るLDK~ ・大きな窓のあるLDKは陽当りも良好で明るい空間となっております。 ・ご家族団らんなど過ごす時間の多いLDKが明るいのは嬉しいポイントですね。
A号棟 ~収納豊富なプランを採用~ ・ウォークインクローゼット、シューズインクロークなど収納豊富なプランを採用。 ・今のお住まいと収納力をぜひ比較してみてください。
C号棟 ~水回り集中プランを採用~ ・キッチン・洗面など水回りを集中させることで家事のしやすい間取。 ・日々の事なので家事導線もご見学の際にぜひチェックしてみてください。
D号棟 ~水回り集中プランを採用~ ・キッチン・洗面など水回りを集中させることで家事のしやすい間取。 ・日々の事なので家事導線もご見学の際にぜひチェックしてみてください。
A号棟 ~家族団らんにピッタリの広々リビング~ ・穏やかな陽だまりに包まれる居心地の良いLDKは、ご家族が集まる憩いのスペースに。 ・隣接の洋室を続き間として利用すれば21帖超の広々空間になります。
C号棟 ~穏やかな陽の入るLDK~ ・穏やかな陽だまりに包まれる居心地の良いLDKは、ご家族が自然と集まる憩いのスペースに。 ・料理と洗濯、片付けなど並行して家事を進める時に便利な回遊動線。
D号棟 ~穏やかな陽の入るLDK~ ・穏やかな陽だまりに包まれる居心地の良いLDKは、ご家族が自然と集まる憩いのスペースに。 ・料理と洗濯、片付けなど並行して家事を進める時に便利な回遊動線。
A号棟 ~穏やかな陽の入るLDK~ ・大きな窓のあるLDKは陽当りも良好で明るい空間となっております。 ・ご家族団らんなど過ごす時間の多いLDKが明るいのは嬉しいポイントですね。
C号棟 ~家族団らんにピッタリの広々リビング~ ・穏やかな陽だまりに包まれる居心地の良いLDKは、ご家族が集まる憩いのスペースに。 ・隣接の洋室を続き間として利用すれば20帖超の広々空間になります。
D号棟 ~家族団らんにピッタリの広々リビング~ ・穏やかな陽だまりに包まれる居心地の良いLDKは、ご家族が集まる憩いのスペースに。 ・隣接の洋室を続き間として利用すれば20帖超の広々空間になります。
担当スタッフより

- 鈴木 幹弥
- 流山市のお住まいなら「スマートプラス」へ♪他社様でローンがダメだった・転職したて・頭金なし・借入がある・・・などでもローン通過実績あり!資金面のご相談だけでもお気軽にどうぞ♪
各棟情報
物件詳細情報
物件No.20000430223
| 所在地 | 千葉県流山市古間木 | ||
|---|---|---|---|
| 交通 | つくばエクスプレス「流山セントラルパーク」駅徒歩10分 つくばエクスプレス「流山おおたかの森」駅徒歩30分 東武野田線「豊四季」駅徒歩33分 |
||
| 間取 | 4LDK~4LDK + WIC | ||
| 土地面積 | 143.92m² ~ 144.92m² 実測 | ||
| 建物面積 | 95.63m² ~ 101.43m² | ||
| 販売戸数 | 3戸 | 総戸数 | 全5戸 |
| 構造・規模 | 木造 2階建て | 築年・入居 | 2025年10月 |
| バルコニー | 南西向き | 建物現況 | 完成済 |
| 建築確認番号 | 第HPA-25-06851-1号、他 | 駐車スペース | 2台可(カースペース) |
| 引渡時期 | 即引渡可 | 地目 | 宅地 |
| 用途地域 | 第一種低層住居専用地域 | 建ぺい率 | 60% |
| 容積率 | 150% | 都市計画 | 市街化区域 |
| 権利種類 | 所有権 | 接道 | 南西側6M公道に接道 |
| 小学校区 | 流山市立八木南小学校(700m) | 中学校区 | 流山市立八木中学校(500m) |
| 取引態様 | 媒介 | ||
| 設備 | 公営水道、本下水、都市ガス | ||
| その他制限事項 | 景観法、高さ最高限度有、日影制限有 | ||
| 備考・制限等 | 建築基準法第22条区域 | ||
こだわり項目
- ※価格は物件の代金総額を表示しており、消費税が課税される場合は税込み価格です。(1,000円未満は切り上げ。)
税率は引き渡し時期により異なりますので、各物件の詳細につきましてはお問い合わせください。 - ※敷地権利が借地権のものは価格に権利金を含みます。
- ※制作中に内容が変更される場合もありますので、あらかじめご了承ください。
- ※購入の前には物件内容や契約条件についてご自身で十分な確認をしていただくようにお願いいたします。
- ※完成予想図はいずれも外構、植栽、外観等実際のものとは多少異なることがあります。
- ※CG合成の画像の場合、実際とは多少異なる場合があります。
周辺地図
周辺施設一覧
- ショッピングセンター
- スーパー
- コンビニ
- ドラッグストア
- ホームセンター
- 飲食店
- その他店舗
- 商店街
- 大学
- 専門学校
- 高校・高専
- 中学校
- 小学校
- 保育園
- 幼稚園
- 公民館・児童館
- 病院
- 郵便局
- 役所
- 図書館
- 金融機関
- 警察・消防
- 趣味・娯楽施設
- 公園・運動施設
- 周辺の街並み
- 駅
- その他
お問い合せ先
- 株式会社smartplus 取手
- お電話でのお問い合わせは
0120-513-135「ホームページを見た」とお問い合わせください - 茨城県取手市寺田4988
- 営業時間:9:00~18:00
- 免許番号:茨城県知事(1)第7396号















