- トップページ
- 中古住宅をエリアから探す
- 石岡市
- 石岡
- ■石岡市石岡 中古戸建■





◆スマートプラスでは幅広いエリアで豊富な物件をご紹介可能♪
◆お客様のご希望に沿うお住まいも弊社ならきっと見つかります!
\住宅ローンならお任せください!最適な金融機関をご紹介いたします♪/
◆借入がある・転職したて・過去に金融事故があった・他社様でダメだった・・・
◆スマートプラスにぜひ一度ご相談ください!通過実績多数ございます♪
\お客様のご都合に合わせてご見学可能!送り迎えもご相談ください♪/
◆当日はもちろん、お仕事終わりの夜間やスキマ時間など短時間でもご案内可能♪
◆ご自宅や最寄り駅などへのご送迎もお任せください!
すべての画像
~閑静な住宅街の立地~ ・周辺は閑静な住宅街となっておりますので、静かな暮らしをご実現いただけます。 ・前面道路の交通量も多くないので、小さなお子様がいるご家庭でもご安心ですね。
~1日の疲れを癒す浴室~ ・ユニットバスの交換もお気軽にご相談くださいませ。 ・丸ごとでなくてもシャワーヘッドのみの交換などもお勧めしております。
~水回り集中プランを採用~ ・キッチン・洗面など水回りを集中させることで家事のしやすい間取。 ・日々の事なので家事導線もご見学の際にぜひチェックしてみてください。
区画図
~リビングを有効活用~ ・キッチンは対面式ではなく壁側にございますので、お部屋の中の空間を有効活用できます。 ・現地ではぜひ家具の配置などもイメージしながらご見学くださいませ。
~大きな鏡を採用した洗面台~ ・洗面台は一面の大型鏡を採用する事で朝の準備などもはかどりますね。 ・洗面台下のパイプスペースは収納としてご利用可能です。
~「和みの部屋」和室をご用意~ ・ゴロンと寝転がったり、お子様のいるご家庭ではお子様を寝かしつけたり、などご活用いただける和室をご用意。 ・やはり畳の香りは心が落ち着きますね。
~採光の明るいお部屋~ ・和室は穏やかな陽の入る明るい空間となっております。 ・くつろぎのプライベート時間を明るい空間で穏やかにお過ごしいただけます。
~余裕の広さの玄関~ ・玄関スペースを大きく取る事でご帰宅された際の開放感が違います。 ・お客様を出迎える顔にもなる玄関、この広さは魅力的ですね。ぜひ現地でご体感くださいませ。
~穏やかな陽の入るダイニングと玄関~ ・陽当りも良好で明るい空間となっております。 ・明るいのは嬉しいポイントですね。
~洗濯物も干しやすいバルコニー~ ・バルコニーには物干し竿受けが標準装備されております。 ・テラス屋根等のオプションもお気軽にご相談くださいませ。
~お住まいの顔「玄関」~ ・毎日お出かけの際もご帰宅の際も通る玄関。 ・ドアの交換や鍵の交換・追加などもお気軽にご相談くださいませ。
~和風な外観の邸宅~ ・シックな和風の外観のお住まい。心が落ち着く見た目となっております。 ・外壁や屋根のリフォームをお考えの方もお気軽にご相談くださいませ。
~広々したお庭のある邸宅~ ・ガーデニングや安らぎの空間として、倉庫を置いたりと様々な活用が可能です。 ・人工芝の敷設などもお気軽にご相談くださいませ。
~お庭のあるお家~ ・余裕の敷地には広いお庭もご用意。
~お住まいの顔「門」~ ・毎日お出かけの際もご帰宅の際も通る和風の門。
~十分な広さのある前面道路~ ・前面道路は広さがございますので、お車で移動も楽々で余計なストレスがかかりません。 ・日々お車での移動が多い方には大切なポイントですね。
~デザイン性に優れた玄関~ ・モダンなデザインの玄関ドアを採用する事でお住まいの「顔」の印象が大きく変わります。 ・毎日帰宅した際に嬉しくなる仕様です。
~開放感ある角地のお住まい~ ・窮屈な感じが無く、ゆったりと暮らせるこの魅力をぜひ現地でご体感くださいませ。
~お問合せはお気軽に~ ・お仕事帰りの遅い時間や短時間のご案内、不動産会社に休みの多い水曜日などでもご対応可能です。 ・ぜひお気軽にお問合せくださいませ。お待ちしております!
常磐線「石岡」駅 1700m
石岡市杉並小学校 400m
府中中学校 2600m
ヨークベニマル 石岡西店 400m
担当スタッフより

- 三皷 亘
- 石岡市のお住まいなら「スマートプラス」へ♪他社様でローンがダメだった・転職したて・頭金なし・借入がある・・・などでもローン通過実績あり!資金面のご相談だけでもお気軽にどうぞ♪
物件詳細情報
物件No.20000432889
| 所在地 | 茨城県石岡市石岡 | ||
|---|---|---|---|
| 交通 | 常磐線「石岡」駅徒歩22分 常磐線「高浜」駅徒歩68分 常磐線「羽鳥」駅徒歩73分 |
||
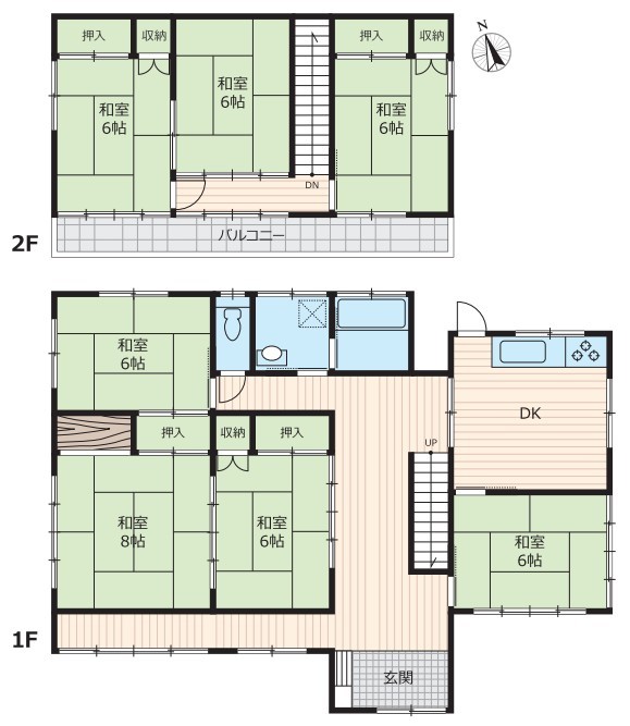
| 間取 | 6DK (和室8帖、和室6帖、和室6帖、和室6帖、和室6帖、和室6帖) | ||
| 土地面積 | 297.58m² 公簿 (私道148m²別に有、私道持分比率:1/5、別途道路を挟んで212㎡(700万円)の土地もあり) | ||
| 建物面積 | 143.25m² 公簿 | ||
| 構造・規模 | 木造 2階建て | 築年月 | 1981年9月築 |
| バルコニー | 南向き | 国土法届出 | 不要 |
| 地目 | 宅地 | 用途地域 | 第一種低層住居専用地域 |
| 建ぺい率 | 40% | 容積率 | 80% |
| 都市計画 | 市街化区域 | 駐車スペース | なし |
| 現況 | 空家 | 引渡時期 | 即引渡可 |
| 引渡条件 | 現況渡し | 権利種類 | 所有権 |
| 接道 | 東側3.5M公道に13.4M接道 北側4M私道に14.9M接道 |
小学校区 | 石岡市立杉並小学校(400m) |
| 中学校区 | 石岡市立府中中学校(2600m) | 取引態様 | 専任媒介 |
| 設備 | 公営水道、本下水、個別LPG | ||
| その他制限事項 | 景観法、宅地造成工事規制区域、高さ最高限度有、日影制限有 | ||
| 備考・制限等 | 建築基準法22条・23条区域 | ||
こだわり項目
- ※価格は物件の代金総額を表示しており、消費税が課税される場合は税込み価格です。(1,000円未満は切り上げ。)
税率は引き渡し時期により異なりますので、各物件の詳細につきましてはお問い合わせください。 - ※敷地権利が借地権のものは価格に権利金を含みます。
- ※制作中に内容が変更される場合もありますので、あらかじめご了承ください。
- ※購入の前には物件内容や契約条件についてご自身で十分な確認をしていただくようにお願いいたします。
- ※完成予想図はいずれも外構、植栽、外観等実際のものとは多少異なることがあります。
- ※CG合成の画像の場合、実際とは多少異なる場合があります。
周辺地図
周辺施設一覧
- ショッピングセンター
- スーパー
- コンビニ
- ドラッグストア
- ホームセンター
- 飲食店
- その他店舗
- 商店街
- 大学
- 専門学校
- 高校・高専
- 中学校
- 小学校
- 保育園
- 幼稚園
- 公民館・児童館
- 病院
- 郵便局
- 役所
- 図書館
- 金融機関
- 警察・消防
- 趣味・娯楽施設
- 公園・運動施設
- 周辺の街並み
- 駅
- その他
お問い合せ先
- 株式会社smartplus 取手
- お電話でのお問い合わせは
0120-513-135「ホームページを見た」とお問い合わせください - 茨城県取手市寺田4988
- 営業時間:9:00~18:00
- 免許番号:茨城県知事(1)第7396号
- トップページ
- 中古住宅をエリアから探す
- 石岡市
- 石岡
- ■石岡市石岡 中古戸建■













