- トップページ
- 新築一戸建てをエリアから探す
- 土浦市
- 生田町
- 土浦市生田町第4
土浦市生田町第4
情報更新日:2026/04/19 次回更新予定日:2026/05/03 取引条件有効期限:2026/05/03
所在地茨城県土浦市生田町[周辺地図]
交 通常磐線「土浦」駅徒歩22分





◆スマートプラスでは幅広いエリアで豊富な物件をご紹介可能♪
◆お客様のご希望に沿うお住まいも弊社ならきっと見つかります!
\住宅ローンならお任せください!最適な金融機関をご紹介いたします♪/
◆借入がある・転職したて・過去に金融事故があった・他社様でダメだった・・・
◆スマートプラスにぜひ一度ご相談ください!通過実績多数ございます♪
\お客様のご都合に合わせてご見学可能!送り迎えもご相談ください♪/
◆当日はもちろん、お仕事終わりの夜間やスキマ時間など短時間でもご案内可能♪
◆ご自宅や最寄り駅などへのご送迎もお任せください!
すべての画像
~新規物件が誕生です~ ・皆様お待たせいたしました。土浦市生田町に新規物件が誕生いたしました。 ・このエリアでお探しの方は、まずはお気軽にお問い合わせくださいませ。お待ちしております。 (3号棟)
~余裕の空間が広がるLDK~ ・17.5帖あるLDKはご家族団らんのお時間を余裕の広さで演出してくれます。 ・ご内覧の際は家具の配置などもイメージしながらご覧くださいませ。 (3号棟)
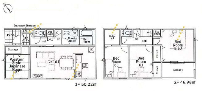
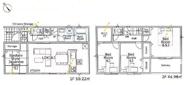
~「納戸」のあるプランを採用~ ・納戸があるので季節物や趣味の道具、普段使わないものなど様々なものがスッキリと片付きます。 ・収納力があるのでタンスなどを置いて部屋が狭くならずに済みます。 (3号棟)
~カースペース2台分ご用意~ ・2台分のカースペースがございますので、車通勤の方やご来客の多い方にもお勧めのお住まいです。 ・余裕の敷地で余裕の新生活をお過ごしいただけます。
~穏やかな陽の入るLDK~ ・大きな窓のあるLDKは陽当りも良好で明るい空間となっております。 ・ご家族団らんなど過ごす時間の多いLDKが明るいのは嬉しいポイントですね。 (3号棟)
~家具の配置がしやすい間取~ ・LDKはリビングとダイニングの境目が分かりやすくなっており、家具の配置がしやすい造り。 ・どんなインテリアにするか考えるだけでも楽しくなりますね。 (3号棟)
~人気のカウンターキッチン~ ・キッチンには余計な柱が無いので、リビングが見渡せ開放感のある造りとなっております。 ・蛇口には浄水器が内蔵されるなど機能面でも優れたキッチンです。 (3号棟)
~使い勝手の良いシステムキッチン~ ・料理がしやすい設計のキッチンでお料理もはかどりますね。 ・もちろんキッチン下部は収納になっておりますので、フライパンなども収納可能です。 (3号棟)
~暖房乾燥機付きの浴室~ ・ヒートショック対策にもなる浴室暖房を標準装備。冬場でも暖かくしてからご入浴が可能です。 ・もちろん乾燥機も付いておりますので、雨の日でも洗濯物を干せますよ。 (3号棟)
~人気の三面鏡を採用~ ・洗面台は三面鏡仕様なので鏡の角度を変える事で頭の後ろの方までご確認可能です。 ・鏡の裏が収納になっておりますので、洗面台周りもスッキリと片付きます。 (3号棟)
~やはり便利なタンク式トイレ~ ・最近はタンクレストイレもございますが、タンク式の場合は停電時もお水を流すことが可能。 ・故障時なども比較的費用が安くなるなど、メリットが多くなります。 (3号棟)
~使い勝手の良い「和洋室」~ ・畳敷きに建具は洋風、というハイブリッド型の「和洋室」。和室と洋室の良い所を組み合わせたお部屋です。 ・やはり畳の香りは心が落ち着きますね。 (3号棟)
~収納豊富な洋室~ ・各居室に備え付けの収納をご用意。タンスなどを置く場合と比べ出っ張らないので部屋の中を有効のご活用いただけます。 ・収納の広さなどぜひ現地でご確認くださいませ。 (3号棟)
~自然な風合いの洋室~ ・ナチュラルな色彩で纏められた洋室は家具のコーディネートもしやすくなっております。 ・どんな家具にするか考えるだけでも楽しくなってきますね。 (3号棟)
~オプション施行もお任せください~ ・フローリングの変色など劣化を軽減し、水をこぼした場合などにも防いでくれるフロアコーテイングが人気となっております。 ・オプション施行もお任せください。 (3号棟)
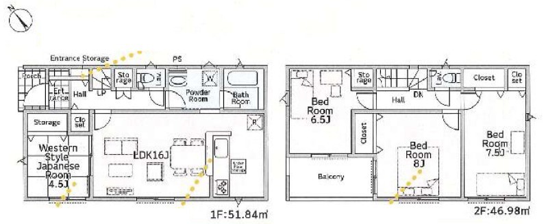
~広々した「納戸」をご用意~ ・本来の用途である収納としてはもちろん、テレワークスペースとしてもご利用可能な納戸をご用意。 ・広さの感覚など、ぜひ現地でご体感くださいませ。 (3号棟)
~十分な容量のシューズボックス~ ・備え付けのシューズボックスは充分な容量を確保。 ・より大型のものへのご変更などご希望の方もお気軽にご相談くださいませ。 (3号棟)
~屋根付きのバルコニー~ ・バルコニーは屋根付きなので急な雨でも安心です。 ・奥行きもあるので洗濯物が干しやすいのも嬉しいポイントですね。 (3号棟)
~閑静な住宅街の立地~ ・周辺は閑静な住宅街となっておりますので、静かな暮らしをご実現いただけます。 ・前面道路の交通量も多くないので、小さなお子様がいるご家庭でもご安心ですね。 (3号棟)
~お庭もある余裕の敷地~ ・広々した敷地にはお庭もご用意。お庭があるだけで余裕を感じますね。 ・防草シートや人工芝の敷設などのオプションもお気軽にご相談くださいませ。 (3号棟)
~資金計画もお任せください~ ・ご見学はもちろん、住宅ローンなど資金面のご相談だけでもお気軽にどうぞ。 ・プロのアドバイザーがお客様にとって最適なプランをご提案させていただきます。 (3号棟)
~周辺環境もご案内いたします~ ・建物自体ももちろん大切ですが、暮らしていく上でとても大切な周辺環境。 ・ご見学時に周辺環境も併せてご案内させていただきますので、お気軽にご相談ください。 (3号棟)
~お問合せはお気軽に~ ・お仕事帰りの遅い時間や短時間のご案内、不動産会社に休みの多い水曜日などでもご対応可能です。 ・ぜひお気軽にお問合せくださいませ。お待ちしております! (3号棟)
~水回り集中プランを採用~ ・キッチン・洗面など水回りを集中させることで家事のしやすい間取。 ・日々の事なので家事導線もご見学の際にぜひチェックしてみてください。 (2号棟)
~収納豊富なプランを採用~ ・ウォークインクローゼットなど収納豊富なプランを採用。家の中がスッキリと片付きます。 ・今のお住まいと収納力をぜひ比較してみてください。 (4号棟)
~「テレワークルーム」のあるお住まい~ ・今の時代に嬉しい「テレワークルーム」をご用意。 ・もちろんお子様の勉強部屋、追加の収納としてのご利用も可能です。 (5号棟)
~水回り集中プランを採用~ ・キッチン・洗面など水回りを集中させることで家事のしやすい間取。 ・日々の事なので家事導線もご見学の際にぜひチェックしてみてください。 (6号棟)
~収納豊富なプランを採用~ ・ウォークインクローゼットなど収納豊富なプランを採用。家の中がスッキリと片付きます。 ・今のお住まいと収納力をぜひ比較してみてください。 (7号棟)
2号棟 ~新規物件が誕生です~ ・皆様お待たせいたしました。土浦市生田町に新規物件が誕生です。 ・このエリアでお探しの方は、まずはお気軽にお問い合わせくださいませ。お待ちしております。
3号棟 ~新規物件が誕生です~ ・皆様お待たせいたしました。土浦市生田に新規物件が誕生いたしました。 ・このエリアでお探しの方は、まずはお気軽にお問い合わせくださいませ。お待ちしております。
4号棟 ~新規物件が誕生です~ ・皆様お待たせいたしました。土浦市生田町に新規物件が誕生です。 ・このエリアでお探しの方は、まずはお気軽にお問い合わせくださいませ。お待ちしております。
5号棟 ~新規物件が誕生です~ ・皆様お待たせいたしました。土浦市生田町に新規物件が誕生いたしました。 ・このエリアでお探しの方は、まずはお気軽にお問い合わせくださいませ。お待ちしております。
6号棟 ~新規物件が誕生です~ ・皆様お待たせいたしました。土浦市生田町に新規物件が誕生です。 ・このエリアでお探しの方は、まずはお気軽にお問い合わせくださいませ。お待ちしております。
7号棟 ~新規物件が誕生です~ ・皆様お待たせいたしました。土浦市生田町に新規物件が誕生いたしました。 ・このエリアでお探しの方は、まずはお気軽にお問い合わせくださいませ。お待ちしております。
2号棟 ~水回り集中プランを採用~ ・キッチン・洗面など水回りを集中させることで家事のしやすい間取。 ・日々の事なので家事導線もご見学の際にぜひチェックしてみてください。
3号棟 ~穏やかな陽の入るLDK~ ・大きな窓のあるLDKは陽当りも良好で明るい空間となっております。 ・ご家族団らんなど過ごす時間の多いLDKが明るいのは嬉しいポイントですね。
4号棟 ~水回り集中プランを採用~ ・キッチン・洗面など水回りを集中させることで家事のしやすい間取。 ・日々の事なので家事導線もご見学の際にぜひチェックしてみてください。
5号棟 ~穏やかな陽の入るLDK~ ・大きな窓のあるLDKは陽当りも良好で明るい空間となっております。 ・ご家族団らんなど過ごす時間の多いLDKが明るいのは嬉しいポイントですね。
6号棟 ~「納戸」のあるプランを採用~ ・納戸があるので季節物や趣味の道具、普段使わないものなど様々なものがスッキリと片付きます。 ・収納力があるのでタンスなどを置いて部屋が狭くならずに済みます。
7号棟 ~穏やかな陽の入るLDK~ ・大きな窓のあるLDKは陽当りも良好で明るい空間となっております。 ・ご家族団らんなど過ごす時間の多いLDKが明るいのは嬉しいポイントですね。
担当スタッフより

- 遠藤 晴子
- 土浦市のお住まいなら「スマートプラス」へ♪他社様でローンがダメだった・転職したて・頭金なし・借入がある・・・などでもローン通過実績あり!資金面のご相談だけでもお気軽にどうぞ♪
各棟情報
物件詳細情報
物件No.20000435874
| 所在地 | 茨城県土浦市生田町 | ||
|---|---|---|---|
| 交通 | 常磐線「土浦」駅徒歩22分 常磐線「荒川沖」駅7.1km つくばエクスプレス「つくば」駅7.8km |
||
| 間取 | 4LDK~4SLDK | ||
| 土地面積 | 199.94m² ~ 203.43m² 実測 | ||
| 建物面積 | 97.2m² ~ 100.44m² | ||
| 販売戸数 | 6戸 | 総戸数 | 全7戸 |
| 構造・規模 | 木造 2階建て | 築年・入居 | 2026年3月 |
| バルコニー | 南西向き | 建物現況 | 完成済 |
| 建築確認番号 | 第25UDI1W建09522号、他 | 駐車スペース | 2台可(カースペース) |
| 引渡時期 | 即引渡可 | 地目 | 宅地 |
| 用途地域 | 商業地域 | 建ぺい率 | 80% |
| 容積率 | 400% | 都市計画 | 市街化区域 |
| 権利種類 | 所有権 | 接道 | 西側5.7M公道に接道 北側22.5M公道に接道 |
| 小学校区 | 土浦小学校(950m) | 中学校区 | 土浦第一中学校(500m) |
| 取引態様 | 媒介 | ||
| 設備 | 公営水道、本下水、都市ガス | ||
| その他制限事項 | 景観法 | ||
| 備考・制限等 | 建築基準法第22条区域 | ||
こだわり項目
- ※価格は物件の代金総額を表示しており、消費税が課税される場合は税込み価格です。(1,000円未満は切り上げ。)
税率は引き渡し時期により異なりますので、各物件の詳細につきましてはお問い合わせください。 - ※敷地権利が借地権のものは価格に権利金を含みます。
- ※制作中に内容が変更される場合もありますので、あらかじめご了承ください。
- ※購入の前には物件内容や契約条件についてご自身で十分な確認をしていただくようにお願いいたします。
- ※完成予想図はいずれも外構、植栽、外観等実際のものとは多少異なることがあります。
- ※CG合成の画像の場合、実際とは多少異なる場合があります。
周辺地図
周辺施設一覧
- ショッピングセンター
- スーパー
- コンビニ
- ドラッグストア
- ホームセンター
- 飲食店
- その他店舗
- 商店街
- 大学
- 専門学校
- 高校・高専
- 中学校
- 小学校
- 保育園
- 幼稚園
- 公民館・児童館
- 病院
- 郵便局
- 役所
- 図書館
- 金融機関
- 警察・消防
- 趣味・娯楽施設
- 公園・運動施設
- 周辺の街並み
- 駅
- その他
お問い合せ先
- 株式会社smartplus 取手
- お電話でのお問い合わせは
0120-513-135「ホームページを見た」とお問い合わせください - 茨城県取手市寺田4988
- 営業時間:9:00~18:00
- 免許番号:茨城県知事(1)第7396号















