- トップページ
- 新築一戸建てをエリアから探す
- 土浦市
- 並木
- 土浦市並木第15
土浦市並木第15
情報更新日:2026/04/10 次回更新予定日:2026/04/24 取引条件有効期限:2026/04/24
所在地茨城県土浦市並木3丁目[周辺地図]
交 通常磐線「土浦」駅バス10分 停歩9分





◆スマートプラスでは幅広いエリアで豊富な物件をご紹介可能♪
◆お客様のご希望に沿うお住まいも弊社ならきっと見つかります!
\住宅ローンならお任せください!最適な金融機関をご紹介いたします♪/
◆借入がある・転職したて・過去に金融事故があった・他社様でダメだった・・・
◆スマートプラスにぜひ一度ご相談ください!通過実績多数ございます♪
\お客様のご都合に合わせてご見学可能!送り迎えもご相談ください♪/
◆当日はもちろん、お仕事終わりの夜間やスキマ時間など短時間でもご案内可能♪
◆ご自宅や最寄り駅などへのご送迎もお任せください!
すべての画像
~お庭もある余裕の敷地~ ・広々した敷地にはお庭もご用意。お庭があるだけで余裕を感じますね。 ・防草シートや人工芝の敷設などのオプションもお気軽にご相談くださいませ。 (2号棟)
~水回り集中プランを採用~ ・キッチン・洗面など水回りを集中させることで家事のしやすい間取。 ・日々の事なので家事導線もご見学の際にぜひチェックしてみてください。 (2号棟)
~カースペース2台以上確保~ ・各棟カースペースが2台以上ございますので、車通勤の方にもお勧めのプランとなっております。 ・余裕の敷地で余裕のある新生活をお過ごしいただけます。
~穏やかな陽の入るLDK~ ・大きな窓のあるLDKは陽当りも良好で明るい空間となっております。 ・ご家族団らんなど過ごす時間の多いLDKが明るいのは嬉しいポイントですね。 (2号棟)
~ナチュラルな色彩のLDK~ ・自然な風合いの色味で纏められたLDKは家具のコーディネートもしやすくなっております。 ・どんなインテリアにするか、考えるだけでも楽しくなりますね。 (2号棟)
~オプション施行もお任せください~ ・フローリングの変色など劣化を軽減し、水をこぼした場合などにも防いでくれるフロアコーテイングが人気となっております。 ・オプション施行もお任せください。 (2号棟)
~人気のカウンターキッチン~ ・キッチンには余計な柱が無いので、リビングが見渡せ開放感のある造りとなっております。 ・蛇口には浄水器が内蔵されるなど機能面でも優れたキッチンです。 (2号棟)
~使い勝手の良いシステムキッチン~ ・料理がしやすい設計のキッチンでお料理もはかどりますね。 ・もちろんキッチン下部は収納になっておりますので、フライパンなども収納可能です。 (2号棟)
~浴室乾燥機付きの浴室~ ・浴室には乾燥機が付いているので雨の日でも洗濯物を干すことが可能です。 ・水はけの良い床材など機能面も充実。マイクロバルなどオプションもご相談くださいませ。 (2号棟)
~明るい洗面スペース~ ・窓から明るい陽が入り、気持ちよく朝の支度ができますね。 ・使い勝手の良い三面鏡タイプのシャワー付き洗面化粧台。鏡の裏に収納があるので洗面台周りもスッキリ。 (2号棟)
~窓付きの明るいトイレ~ ・使用後や掃除の際に窓を開ければ、外からの新鮮な空気を取り込み素早く換気ができます。 ・埋め込み収納付きでストックや掃除用具もスッキリ片付きますね。 (2号棟)
~「和みの部屋」和室をご用意~ ・ゴロンと寝転がったり、お子様のいるご家庭ではお子様を寝かしつけたり、などご活用いただける和室をご用意。 ・やはり畳の香りは心が落ち着きますね。 (2号棟)
~収納豊富な洋室~ ・各居室に備え付けの収納をご用意。タンスなどを置く場合と比べ出っ張らないので部屋の中を有効のご活用いただけます。 ・収納の広さなどぜひ現地でご確認くださいませ。 (2号棟)
~2面採光の明るいお部屋~ ・洋室は2面採光とする事で穏やかな陽の入る明るい空間となっております。 ・くつろぎのプライベート時間を明るい空間で穏やかにお過ごしいただけます。 (2号棟)
~自然な風合いの洋室~ ・ナチュラルな色彩で纏められた洋室は家具のコーディネートもしやすくなっております。 ・どんな家具にするか考えるだけでも楽しくなってきますね。 (2号棟)
~圧迫感のない明るい玄関~ ・玄関ドアにガラス部分を設ける事で穏やかな陽の入る玄関になります。 ・備え付けのシューズボックスはたっぷりしまえて玄関がスッキリ片付きますね。 (2号棟)
~屋根付きのバルコニー~ ・バルコニーは屋根付きなので急な雨でも安心です。 ・奥行きもあるので洗濯物が干しやすいのも嬉しいポイントですね。 (2号棟)
~モダンな印象を与える外観~ ・シックな色彩の2トーンカラーを採用する事でモダンでお洒落な印象の外観となっております。 ・毎日家に帰ってくることが誇らしくなる高級感のある仕様。 (2号棟)
~ゆとりあるカースペース~ ・セカンドカーや来客時にも困らないカースペース2台分は並列駐車可能でお車の出し入れもラクラク。 ・カーポートなどのオプションもお気軽にご相談くださいませ。 (2号棟)
~資金計画もお任せください~ ・ご見学はもちろん、住宅ローンなど資金面のご相談だけでもお気軽にどうぞ。 ・プロのアドバイザーがお客様にとって最適なプランをご提案させていただきます。 (2号棟)
~周辺環境もご案内いたします~ ・建物自体ももちろん大切ですが、暮らしていく上でとても大切な周辺環境。 ・ご見学時に周辺環境も併せてご案内させていただきますので、お気軽にご相談ください。 (2号棟)
~「納戸」のあるプランを採用~ ・納戸があるので季節物や趣味の道具、普段使わないものなど様々なものがスッキリと片付きます。 ・収納力があるのでタンスなどを置いて部屋が狭くならずに済みます。 (3号棟)
~収納豊富なプランを採用~ ・ウォークインクローゼットなど収納豊富なプランを採用。家の中がスッキリと片付きます。 ・今のお住まいと収納力をぜひ比較してみてください。 (4号棟)
~収納豊富なプランを採用~ ・ウォークインクローゼットなど収納豊富なプランを採用。家の中がスッキリと片付きます。 ・今のお住まいと収納力をぜひ比較してみてください。 (5号棟)
2号棟 ~スタイリッシュな外観~ ・重厚感のあるグレーと清潔感のあるホワイトの組み合わせで、洗練されたクールな雰囲気に。 ・2色のコントラストがオシャレでスタイリッシュな外観に見せてくれますね。
3号棟 ~明るさを感じる外観~ ・外壁は2トーンカラーを採用し、デザイン性に優れた見た目となっております。 ・帰宅した際にホッと感じるような飽きのこない外観。ぜひ現地でご確認くださいませ。
4号棟 ~モダンな印象の外観~ ・木目調の外壁アクセントは幅広いテイストにマッチし、住まいに温かみを与えてくれる人気のデザイン。 ・見た目に重厚感が生まれ、高級感のある仕様となっております。
5号棟 ~スタイリッシュな外観~ ・重厚感のあるグレーと清潔感のあるホワイトの組み合わせで、洗練されたクールな雰囲気に。 ・2色のコントラストがオシャレでスタイリッシュな外観に見せてくれますね。
2号棟 ~家族団らんにピッタリの広々リビング~ ・自然の光が降り注ぐ明るいLDKは家族団らんにピッタリ。 ・隣接の和室を続き間として利用すれば21帖の広々空間になります。
3号棟 ~穏やかな陽の入るLDK~ ・大きな窓のあるLDKは陽当りも良好で明るい空間となっております。 ・ご家族団らんなど過ごす時間の多いLDKが明るいのは嬉しいポイントですね。
4号棟 ~穏やかな陽の入るLDK~ ・大きな窓のあるLDKは陽当りも良好で明るい空間となっております。 ・ご家族団らんなど過ごす時間の多いLDKが明るいのは嬉しいポイントですね。
5号棟 ~穏やかな陽の入るLDK~ ・大きな窓のあるLDKは陽当りも良好で明るい空間となっております。 ・ご家族団らんなど過ごす時間の多いLDKが明るいのは嬉しいポイントですね。
2号棟 ~水回り集中プランを採用~ ・キッチン・洗面など水回りを集中させることで家事のしやすい間取。 ・日々の事なので家事導線もご見学の際にぜひチェックしてみてください。
3号棟 ~「納戸」のあるプランを採用~ ・納戸があるので季節物や趣味の道具、普段使わないものなど様々なものがスッキリと片付きます。 ・収納力があるのでタンスなどを置いて部屋が狭くならずに済みます。
4号棟 ~収納豊富なプランを採用~ ・ウォークインクローゼットなど収納豊富なプランを採用。家の中がスッキリと片付きます。 ・今のお住まいと収納力をぜひ比較してみてください。
5号棟 ~収納豊富なプランを採用~ ・ウォークインクローゼットなど収納豊富なプランを採用。家の中がスッキリと片付きます。 ・今のお住まいと収納力をぜひ比較してみてください。
2号棟 ~ナチュラルな色彩のLDK~ ・自然な風合いの色味で纏められたLDKは家具のコーディネートもしやすくなっております。 ・どんなインテリアにするか、考えるだけでも楽しくなりますね。
3号棟 ~窓からはたっぷりの陽光~ ・穏やかな陽だまりに包まれる居心地の良いLDKは、ご家族が自然と集まる憩いのスペースに。 ・家事をしながらご家族との会話が楽しめる人気のカウンターキッチンも魅力。
4号棟 ~日当り良好のLDK~ ・穏やかな陽だまりに包まれる居心地の良いLDKは、ご家族が自然と集まる憩いのスペースに。 ・柔らかみのあるナチュラルカラーで、家具やカーテンの色も選びやすいです。
5号棟 ~家族団らんにピッタリの広々リビング~ ・穏やかな陽だまりに包まれる居心地の良いLDKは、ご家族が自然と集まる憩いのスペースに。 ・家事をしながらご家族との会話が楽しめる人気のカウンターキッチンも魅力です。
担当スタッフより

- 遠藤 晴子
- 土浦市のお住まいなら「スマートプラス」へ♪他社様でローンがダメだった・転職したて・頭金なし・借入がある・・・などでもローン通過実績あり!資金面のご相談だけでもお気軽にどうぞ♪
各棟情報
物件詳細情報
物件No.20000435914
| 所在地 | 茨城県土浦市並木3丁目 | ||
|---|---|---|---|
| 交通 | 常磐線「土浦」駅バス10分 バス停「並木一区」停歩9分 常磐線「神立」駅6.7km 常磐線「土浦」駅徒歩59分 |
||
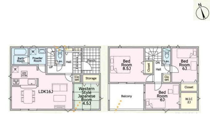
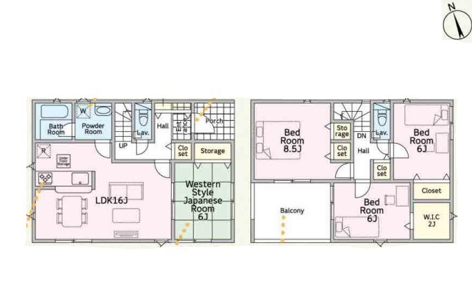
| 間取 | 4LDK~4SLDK | ||
| 土地面積 | 180.78m² ~ 185.63m² 実測 | ||
| 建物面積 | 95.98m² ~ 100.44m² | ||
| 販売戸数 | 4戸 | 総戸数 | 全5戸 |
| 構造・規模 | 木造 2階建て | 築年・入居 | 2026年2月 |
| バルコニー | 南向き | 建物現況 | 完成済 |
| 建築確認番号 | 第25UDI1W建08223号、他 | 駐車スペース | 2台可(カースペース:並列) |
| 引渡時期 | 即引渡可 | 地目 | 宅地 |
| 用途地域 | 第二種低層住居専用地域 | 建ぺい率 | 60% |
| 容積率 | 150% | 都市計画 | 市街化区域 |
| 権利種類 | 所有権 | 接道 | 東側6M公道に接道 北側4M公道に接道 |
| 小学校区 | 土浦市立都和南小学校(1100m) | 中学校区 | 土浦市立都和中学校(1600m) |
| 取引態様 | 媒介 | ||
| 設備 | 公営水道、本下水、都市ガス | ||
| その他制限事項 | 景観法、日影制限有 | ||
| 備考・制限等 | 建築基準法第22条区域 | ||
こだわり項目
- ※価格は物件の代金総額を表示しており、消費税が課税される場合は税込み価格です。(1,000円未満は切り上げ。)
税率は引き渡し時期により異なりますので、各物件の詳細につきましてはお問い合わせください。 - ※敷地権利が借地権のものは価格に権利金を含みます。
- ※制作中に内容が変更される場合もありますので、あらかじめご了承ください。
- ※購入の前には物件内容や契約条件についてご自身で十分な確認をしていただくようにお願いいたします。
- ※完成予想図はいずれも外構、植栽、外観等実際のものとは多少異なることがあります。
- ※CG合成の画像の場合、実際とは多少異なる場合があります。
周辺地図
周辺施設一覧
- ショッピングセンター
- スーパー
- コンビニ
- ドラッグストア
- ホームセンター
- 飲食店
- その他店舗
- 商店街
- 大学
- 専門学校
- 高校・高専
- 中学校
- 小学校
- 保育園
- 幼稚園
- 公民館・児童館
- 病院
- 郵便局
- 役所
- 図書館
- 金融機関
- 警察・消防
- 趣味・娯楽施設
- 公園・運動施設
- 周辺の街並み
- 駅
- その他
お問い合せ先
- 株式会社smartplus 取手
- お電話でのお問い合わせは
0120-513-135「ホームページを見た」とお問い合わせください - 茨城県取手市寺田4988
- 営業時間:9:00~18:00
- 免許番号:茨城県知事(1)第7396号















