- トップページ
- 新築一戸建てをエリアから探す
- かすみがうら市
- 下稲吉
- 1号棟 かすみがうら市下稲吉 第15
1号棟 かすみがうら市下稲吉 第15
情報更新日:2026/04/13 次回更新予定日:2026/04/24
所在地茨城県かすみがうら市下稲吉[周辺地図]
交 通常磐線「石岡」駅バス15分 停歩4分





◆スマートプラスでは幅広いエリアで豊富な物件をご紹介可能♪
◆お客様のご希望に沿うお住まいも弊社ならきっと見つかります!
\住宅ローンならお任せください!最適な金融機関をご紹介いたします♪/
◆借入がある・転職したて・過去に金融事故があった・他社様でダメだった・・・
◆スマートプラスにぜひ一度ご相談ください!通過実績多数ございます♪
\お客様のご都合に合わせてご見学可能!送り迎えもご相談ください♪/
◆当日はもちろん、お仕事終わりの夜間やスキマ時間など短時間でもご案内可能♪
◆ご自宅や最寄り駅などへのご送迎もお任せください!
すべての画像
~スタイリッシュな外観~ ・重厚感のあるネイビーと清潔感のあるホワイトの組み合わせが、洗練されたクールな雰囲気を醸し出しています。 ・すっきりと洗練された印象のお住まいになりますね。
~水回り集中プランを採用~ ・キッチン・洗面など水回りを集中させることで家事のしやすい間取。 ・日々の事なので家事導線もご見学の際にぜひチェックしてみてください。
~カースペース2台以上確保~ ・各棟カースペースが2台以上ございますので、車通勤の方にもお勧めのプランとなっております。 ・余裕の敷地で余裕のある新生活をお過ごしいただけます。
~完成物件もご案内可能~ ・ご案内時には実際の立地に加え、同メーカー・同仕様の完成物件もご案内可能です。 ・ぜひ現地と建物をご覧いただき、具体的にイメージしてみてくださいませ。
~ご家族を守る「耐震等級3」~ ・住宅性能評価において「耐震等級3」を取得。地震に強い家であることが証明されております。 ・倒壊の恐れが低くなりますので、地震保険が半額になるメリットも。
~お庭もある余裕の敷地~ ・広々した敷地にはお庭もご用意。お庭があるだけで余裕を感じますね。 ・防草シートや人工芝の敷設などのオプションもお気軽にご相談くださいませ。
~ゆとりあるカースペース~ ・セカンドカーや来客時にも困らないカースペース2台分。物置や駐輪スペースなどにも利用できますね。 ・カーポートなどのオプションもお気軽にご相談くださいませ。
~オプション工事もお任せください~ ・せっかくの良い住宅を更に良くする各種オプション工事。 ・住宅オプション協会加盟の当社なら様々なご提案が可能です。ぜひお気軽にご相談くださいませ。
~風にも強い強靭な建物~ ・住宅性能評価において「耐風等級2」を取得。 ・大型の台風など暴風にも耐える、強靭な建物となっております。
~資金計画もお任せください~ ・ご見学はもちろん、住宅ローンなど資金面のご相談だけでもお気軽にどうぞ。 ・プロのアドバイザーがお客様にとって最適なプランをご提案させていただきます。
~周辺環境もご案内いたします~ ・建物自体ももちろん大切ですが、暮らしていく上でとても大切な周辺環境。 ・ご見学時に周辺環境も併せてご案内させていただきますので、お気軽にご相談ください。
~お問合せはお気軽に~ ・お仕事帰りの遅い時間や短時間のご案内、不動産会社に休みの多い水曜日などでもご対応可能です。 ・ぜひお気軽にお問合せくださいませ。お待ちしております!
下稲吉小学校 900m
下稲吉中学校 1800m
スーパーセンタートライアルかすみがうら店 550m
ヨークベニマル 千代田モール店 1300m
担当スタッフより

- 遠藤 晴子
- かすみがうら市のお住まいなら「スマートプラス」へ♪他社様でローンがダメだった・転職したて・頭金なし・借入がある・・・などでもローン通過実績あり!資金面のご相談だけでもお気軽にどうぞ♪
各棟情報
物件詳細情報
物件No.20000444501-001
| 所在地 | 茨城県かすみがうら市下稲吉 | ||
|---|---|---|---|
| 交通 | 常磐線「石岡」駅バス15分 バス停「西山南」停歩4分 常磐線「神立」駅徒歩39分 常磐線「土浦」駅7.1km |
||
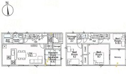
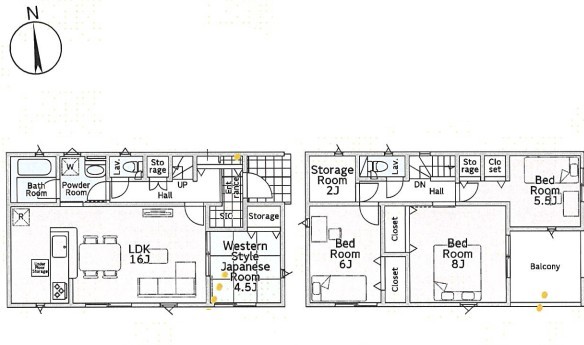
| 間取 | 4SLDK + SIC (LDK16帖、洋室8帖、洋室6帖、洋室5.5帖、和室4.5帖、S8帖) | ||
| 土地面積 | 177.9m² 実測 | ||
| 建物面積 | 97.2m² (別途ルーフバルコニー7.29平米) | ||
| 販売戸数 | 4戸 | 総戸数 | 全7戸 |
| 構造・規模 | 木造 2階建て | 築年・入居 | 2026年3月 |
| バルコニー | 南向き | 建物現況 | 完成済 |
| 建築確認番号 | 第25UDI1W建09680号 | 駐車スペース | 2台可(カースペース) |
| 引渡時期 | 即引渡可 | 地目 | 宅地 |
| 用途地域 | 工業地域 | 建ぺい率 | 60% |
| 容積率 | 200% | 都市計画 | 市街化区域 |
| 権利種類 | 所有権 | 接道 | 東側4.02M公道に接道 |
| 小学校区 | 下稲吉小学校(900m) | 中学校区 | 下稲吉中学校(1800m) |
| 取引態様 | 媒介 | ||
| 設備 | 公営水道、本下水、個別LPG | ||
| その他制限事項 | 景観法 | ||
| 備考・制限等 | 建築基準法第22条区域 | ||
こだわり項目
- ※価格は物件の代金総額を表示しており、消費税が課税される場合は税込み価格です。(1,000円未満は切り上げ。)
税率は引き渡し時期により異なりますので、各物件の詳細につきましてはお問い合わせください。 - ※敷地権利が借地権のものは価格に権利金を含みます。
- ※制作中に内容が変更される場合もありますので、あらかじめご了承ください。
- ※購入の前には物件内容や契約条件についてご自身で十分な確認をしていただくようにお願いいたします。
- ※完成予想図はいずれも外構、植栽、外観等実際のものとは多少異なることがあります。
- ※CG合成の画像の場合、実際とは多少異なる場合があります。
周辺地図
周辺施設一覧
- ショッピングセンター
- スーパー
- コンビニ
- ドラッグストア
- ホームセンター
- 飲食店
- その他店舗
- 商店街
- 大学
- 専門学校
- 高校・高専
- 中学校
- 小学校
- 保育園
- 幼稚園
- 公民館・児童館
- 病院
- 郵便局
- 役所
- 図書館
- 金融機関
- 警察・消防
- 趣味・娯楽施設
- 公園・運動施設
- 周辺の街並み
- 駅
- その他
お問い合せ先
- 株式会社smartplus 取手
- お電話でのお問い合わせは
0120-513-135「ホームページを見た」とお問い合わせください - 茨城県取手市寺田4988
- 営業時間:9:00~18:00
- 免許番号:茨城県知事(1)第7396号
- トップページ
- 新築一戸建てをエリアから探す
- かすみがうら市
- 下稲吉
- 1号棟 かすみがうら市下稲吉 第15




























