- トップページ
- 新築一戸建てをエリアから探す
- 龍ケ崎市
- 城ノ内
- 龍ケ崎市城ノ内第10
龍ケ崎市城ノ内第10
情報更新日:2026/05/29 次回更新予定日:2026/06/08
所在地茨城県龍ケ崎市城ノ内3丁目[周辺地図]
交 通常磐線「龍ケ崎市」駅バス29分 停歩4分





◆スマートプラスでは幅広いエリアで豊富な物件をご紹介可能♪
◆お客様のご希望に沿うお住まいも弊社ならきっと見つかります!
\住宅ローンならお任せください!最適な金融機関をご紹介いたします♪/
◆借入がある・転職したて・過去に金融事故があった・他社様でダメだった・・・
◆スマートプラスにぜひ一度ご相談ください!通過実績多数ございます♪
\お客様のご都合に合わせてご見学可能!送り迎えもご相談ください♪/
◆当日はもちろん、お仕事終わりの夜間やスキマ時間など短時間でもご案内可能♪
◆ご自宅や最寄り駅などへのご送迎もお任せください!
すべての画像
~新規物件が誕生です~ ・皆様お待たせいたしました。龍ケ崎市城ノ内に新規物件が誕生いたしました。 ・このエリアでお探しの方は、まずはお気軽にお問い合わせくださいませ。お待ちしております。
~穏やかな陽の入るLDK~ ・大きな窓のあるLDKは陽当りも良好で明るい空間となっております。 ・ご家族団らんなど過ごす時間の多いLDKが明るいのは嬉しいポイントですね。
~収納豊富なプランを採用~ ・ウォークインクローゼットなど収納豊富なプランを採用。家の中がスッキリと片付きます。 ・今のお住まいと収納力をぜひ比較してみてください。
~カースペース2台分ご用意~ ・2台分のカースペースがございますので、車通勤の方やご来客の多い方にもお勧めのお住まいです。 ・余裕の敷地で余裕の新生活をお過ごしいただけます。
~家具の配置がしやすい間取~ ・LDKはリビングとダイニングの境目が分かりやすくなっており、家具の配置がしやすい造り。 ・どんなインテリアにするか考えるだけでも楽しくなりますね。
~人気のカウンターキッチン~ ・キッチンは人気のカウンタータイプを採用。「ご家族の顔が見える」造りです。 ・蛇口に浄水器が内蔵されているなど機能面でも優れた仕様です。
~使い勝手の良いシステムキッチン~ ・料理がしやすい設計のキッチンでお料理もはかどりますね。 ・もちろんキッチン下部は収納になっておりますので、フライパンなども収納可能です。
~暖房乾燥機付きの浴室~ ・ヒートショック対策にもなる浴室暖房を標準装備。冬場でも暖かくしてからご入浴が可能です。 ・もちろん乾燥機も付いておりますので、雨の日でも洗濯物を干せますよ。
~人気の三面鏡を採用~ ・洗面台は三面鏡仕様なので鏡の角度を変える事で頭の後ろの方までご確認可能です。 ・鏡の裏が収納になっておりますので、洗面台周りもスッキリと片付きます。
~やはり便利なタンク式トイレ~ ・最近はタンクレストイレもございますが、タンク式の場合は停電時もお水を流すことが可能。 ・故障時なども比較的費用が安くなるなど、メリットが多くなります。
~使い勝手の良い「和洋室」~ ・畳敷きに建具は洋風、というハイブリッド型の「和洋室」。和室と洋室の良い所を組み合わせたお部屋です。 ・やはり畳の香りは心が落ち着きますね。
~収納豊富な洋室~ ・各居室に備え付けの収納をご用意。タンスなどを置く場合と比べ出っ張らないので部屋の中を有効のご活用いただけます。 ・収納の広さなどぜひ現地でご確認くださいませ。
~2面採光の明るいお部屋~ ・洋室は2面採光とする事で穏やかな陽の入る明るい空間となっております。 ・くつろぎのプライベート時間を明るい空間で穏やかにお過ごしいただけます。
~自然な風合いの洋室~ ・ナチュラルな色彩で纏められた洋室は家具のコーディネートもしやすくなっております。 ・どんな家具にするか考えるだけでも楽しくなってきますね。
~憧れのウォークインクローゼット~ ・居室にウォークインを設ける事で季節ものや趣味の用具などもスッキリと収納可能です。 ・ぜひ現地でその便利さをご体感くださいませ。
~十分な容量のシューズボックス~ ・備え付けのシューズボックスは充分な容量を確保。 ・より大型のものへのご変更などご希望の方もお気軽にご相談くださいませ。
~お住まいの顔「玄関」~ ・玄関ドアの上にはもちろん軒がございますので、雨の日でも濡れずに鍵の開閉が可能です。 ・鍵は防犯性に優れたディンプルキーを採用。
~屋根付きのバルコニー~ ・バルコニーは屋根付きなので急な雨でも安心です。 ・奥行きもあるので洗濯物が干しやすいのも嬉しいポイントですね。
~駐車場は2台分ご用意~ ・駐車場は2台分ございますので、車通勤の方や複数台お持ちの方にもお勧めのお住まいです。 ・カーポートなどのオプションもお気軽にご相談くださいませ。
~資金計画もお任せください~ ・ご見学はもちろん、住宅ローンなど資金面のご相談だけでもお気軽にどうぞ。 ・プロのアドバイザーがお客様にとって最適なプランをご提案させていただきます。
~お問合せはお気軽に~ ・お仕事帰りの遅い時間や短時間のご案内、不動産会社に休みの多い水曜日などでもご対応可能です。 ・ぜひお気軽にお問合せくださいませ。お待ちしております!
城ノ内小学校 870m
城ノ内中学校 500m
カスミ 龍ケ崎中里店 1500m
担当スタッフより

- 杉森 龍
- 龍ケ崎市のお住まいなら「スマートプラス」へ♪他社様でローンがダメだった・転職したて・頭金なし・借入がある・・・などでもローン通過実績あり!資金面のご相談だけでもお気軽にどうぞ♪
物件詳細情報
物件No.20000444916
| 所在地 | 茨城県龍ケ崎市城ノ内3丁目 | ||
|---|---|---|---|
| 交通 | 常磐線「龍ケ崎市」駅バス29分 バス停「城ノ内5丁目西」停歩4分 関東鉄道竜ヶ崎線「竜ヶ崎」駅徒歩50分 常磐線「牛久」駅9.3km |
||
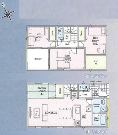
| 間取 | 3LDK + WIC、畳コーナー4帖 (LDK18.2帖、洋室7.5帖、洋室6.5帖、洋室5帖) | ||
| 土地面積 | 153.14m² 実測 | ||
| 建物面積 | 98.01m² (ルーフバルコニー7.29平米) | ||
| 販売戸数 | 1戸 | 総戸数 | 全2戸 |
| 構造・規模 | 木造 2階建て | 築年・入居 | 2026年5月 |
| バルコニー | 南西向き | 建物現況 | 完成済 |
| 建築確認番号 | 第25UDI1W建11359号 | 駐車スペース | 2台可(カースペース:並列) |
| 引渡時期 | 即引渡可 | 地目 | 宅地 |
| 用途地域 | 第一種低層住居専用地域 | 建ぺい率 | 50% |
| 容積率 | 100% | 都市計画 | 市街化区域 |
| 権利種類 | 所有権 | 接道 | 南東側5.98M公道に接道 |
| 小学校区 | 龍ケ崎市立城ノ内小学校(870m) | 中学校区 | 龍ケ崎市立城ノ内中学校(500m) |
| 取引態様 | 媒介 | ||
| 設備 | 公営水道、本下水、都市ガス | ||
| その他制限事項 | 景観法、高さ最高限度有、日影制限有 | ||
| 備考・制限等 | 建築基準法第22条区域 外壁後退制限1m | ||
こだわり項目
- ※価格は物件の代金総額を表示しており、消費税が課税される場合は税込み価格です。(1,000円未満は切り上げ。)
税率は引き渡し時期により異なりますので、各物件の詳細につきましてはお問い合わせください。 - ※敷地権利が借地権のものは価格に権利金を含みます。
- ※制作中に内容が変更される場合もありますので、あらかじめご了承ください。
- ※購入の前には物件内容や契約条件についてご自身で十分な確認をしていただくようにお願いいたします。
- ※完成予想図はいずれも外構、植栽、外観等実際のものとは多少異なることがあります。
- ※CG合成の画像の場合、実際とは多少異なる場合があります。
周辺地図
周辺施設一覧
- ショッピングセンター
- スーパー
- コンビニ
- ドラッグストア
- ホームセンター
- 飲食店
- その他店舗
- 商店街
- 大学
- 専門学校
- 高校・高専
- 中学校
- 小学校
- 保育園
- 幼稚園
- 公民館・児童館
- 病院
- 郵便局
- 役所
- 図書館
- 金融機関
- 警察・消防
- 趣味・娯楽施設
- 公園・運動施設
- 周辺の街並み
- 駅
- その他
お問い合せ先
- 株式会社smartplus 取手
- お電話でのお問い合わせは
0120-513-135「ホームページを見た」とお問い合わせください - 茨城県取手市寺田4988
- 営業時間:9:00~18:00
- 免許番号:茨城県知事(1)第7396号






























