- トップページ
- 中古住宅をエリアから探す
- 野田市
- 日の出町
- ■野田市日の出町 長期優良住宅~築浅中古戸建て~■
■野田市日の出町 長期優良住宅~築浅中古戸建て~■
情報更新日:2026/04/17 次回更新予定日:2026/05/01
所在地千葉県野田市日の出町[周辺地図]
交 通東武野田線「川間」駅徒歩20分





◆スマートプラスでは幅広いエリアで豊富な物件をご紹介可能♪
◆お客様のご希望に沿うお住まいも弊社ならきっと見つかります!
\住宅ローンならお任せください!最適な金融機関をご紹介いたします♪/
◆借入がある・転職したて・過去に金融事故があった・他社様でダメだった・・・
◆スマートプラスにぜひ一度ご相談ください!通過実績多数ございます♪
\お客様のご都合に合わせてご見学可能!送り迎えもご相談ください♪/
◆当日はもちろん、お仕事終わりの夜間やスキマ時間など短時間でもご案内可能♪
◆ご自宅や最寄り駅などへのご送迎もお任せください!
すべての画像
~新規物件が誕生です~ ・皆様お待たせいたしました。○○市○○に新規物件が誕生いたしました。 ・このエリアでお探しの方は、まずはお気軽にお問い合わせくださいませ。お待ちしております。
~吹抜けのあるLDK~ ・LDKに吹抜けを配する事で縦への空間が生まれ、開放感のある広々とした仕様に。 ・ご来客の際なども自慢できるような高級仕様のLDKとなっております。
~明るさを感じる外観~ ・帰宅した際にホッと感じるような飽きのこない外観。ぜひ現地でご確認くださいませ。 ・広がる空のもと、開放感あふれる日常がここから
~収納豊富なプランを採用~ ・ウォークインクローゼット、シューズインクロークなど収納豊富なプランを採用。 ・今のお住まいと収納力をぜひ比較してみてください。
~カースペース2台分ご用意~ ・2台分のカースペースがございますので、車通勤の方やご来客の多い方にもお勧めのお住まいです。 ・余裕の敷地で余裕の新生活をお過ごしいただけます。
~十分な広さのある前面道路~ ・前面道路は約6mございますので、お車でのすれ違いも楽々で余計なストレスがかかりません。 ・日々お車での移動が多い方には大切なポイントですね。
~国が認めた長期優良住宅~ ・名の通り長期に亘り優れた性能が持続する長期優良住宅。 ・税制面での優遇などもございます。詳細は担当までお気軽にお問い合わせくださいませ。
~ナチュラルな色彩のLDK~ ・自然な風合いの色味で纏められたLDKは家具のコーディネートもしやすくなっております。 ・どんなインテリアにするか、考えるだけでも楽しくなりますね。
~余裕の空間が広がるLDK~ ・約26帖あるLDKはご家族団らんのお時間を余裕の広さで演出してくれます。 ・ご内覧の際は家具の配置などもイメージしながらご覧くださいませ。
~憧れのアイランドキッチン~ ・デザイン性の高い人気のアイランドキッチンを採用。 ・両方向からキッチンにアクセスできるので複数人での作業も楽々。ぜひ現地でその魅力をご体感くださいませ。
~食器洗浄機を標準装備~ ・キッチンにはビルトインタイプの食器洗浄機を標準装備。 ・家事にかける時間を削減でき、「自分時間」を増やすことができる嬉しいアイテムです。
~人気の三面鏡を採用~ ・洗面台は三面鏡仕様なので鏡の角度を変える事で頭の後ろの方までご確認可能です。 ・鏡の裏が収納になっておりますので、洗面台周りもスッキリと片付きます。
~暖房乾燥機付きの浴室~ ・ヒートショック対策にもなる浴室暖房を標準装備。冬場でも暖かくしてからご入浴が可能です。 ・もちろん乾燥機も付いておりますので、雨の日でも洗濯物を干せますよ。
~脱衣場~ ・洗面所にはリネンスペースを設ける事でタオルや洗剤などの置場にも困りません。 ・意外とリネンスペースがある物件は少ないので、ぜひ現地でその魅力をご確認ください。
~自然な風合いの洋室~ ・ナチュラルな色彩で纏められた洋室は家具のコーディネートもしやすくなっております。 ・どんな家具にするか考えるだけでも楽しくなってきますね。
~収納豊富な洋室~ ・各居室に備え付けの収納をご用意。タンスなどを置く場合と比べ出っ張らないので部屋の中を有効のご活用いただけます。 ・収納の広さなどぜひ現地でご確認くださいませ。
~オプション施行もお任せください~ ・フローリングの変色など劣化を軽減し、水をこぼした場合などにも防いでくれるフロアコーテイングが人気となっております。 ・オプション施行もお任せください。
~本格的な広さのウォークイン~ ・しっかりとした広さのウォークインクローゼットを設けた仕様。 ・よくある小さめのウォークインは実際には収納力弱めですが、これだけ大きいと十分な収納力です。
~人気のタンクレストイレ~ ・デザイン性に優れ、スッキリと見えるタンクレストイレを採用。 ・節水効果が高く、エコな上に水道代も削減可能。シンプルな形なのでお掃除も楽々です。
~シューズインクロークのある玄関~ ・玄関横にシューズインクロークをご用意。 ・追加の靴置きとしてはもちろん、スキー・ゴルフなど趣味の用具の置場としてもご利用いただけます。
~資金計画もお任せください~ ・ご見学はもちろん、住宅ローンなど資金面のご相談だけでもお気軽にどうぞ。 ・プロのアドバイザーがお客様にとって最適なプランをご提案させていただきます。
~周辺環境もご案内いたします~ ・建物自体ももちろん大切ですが、暮らしていく上でとても大切な周辺環境。 ・ご見学時に周辺環境も併せてご案内させていただきますので、お気軽にご相談ください。
~閑静な住宅街の立地~ ・周辺は閑静な住宅街となっておりますので、静かな暮らしをご実現いただけます。 ・前面道路の交通量も多くないので、小さなお子様がいるご家庭でもご安心ですね。
東武野田線「川間」駅 1600m
担当スタッフより

- 鈴木 幹弥
- 野田市のお住まいなら「スマートプラス」へ♪他社様でローンがダメだった・転職したて・頭金なし・借入がある・・・などでもローン通過実績あり!資金面のご相談だけでもお気軽にどうぞ♪
物件詳細情報
物件No.20000444986
| 所在地 | 千葉県野田市日の出町 | ||
|---|---|---|---|
| 交通 | 東武野田線「川間」駅徒歩20分 東武野田線「七光台」駅徒歩29分 東武野田線「清水公園」駅徒歩54分 |
||
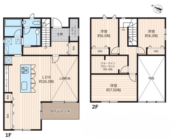
| 間取 | 3LDK (LDK26帖、洋室7.5帖、洋室6帖、洋室6帖) | ||
| 土地面積 | 176.95m² 公簿 | ||
| 建物面積 | 115.1m² 公簿 | ||
| 構造・規模 | 木造 2階建て | 築年月 | 2025年10月築 |
| バルコニー | 南西向き | 国土法届出 | 不要 |
| 地目 | 宅地 | 用途地域 | 第一種低層住居専用地域 |
| 建ぺい率 | 50% | 容積率 | 100% |
| 都市計画 | 市街化区域 | 駐車スペース | 2台(カースペース:並列) |
| 現況 | 居住中 | 引渡時期 | 相談 |
| 引渡条件 | 現況渡し | 権利種類 | 所有権 |
| 接道 | 北東側6M公道に接道 | 小学校区 | 野田市立七光台小学校(1440m) |
| 中学校区 | 野田市立北部中学校(1760m) | 取引態様 | 専任媒介 |
| 設備 | 公営水道、本下水、オール電化 | ||
| その他制限事項 | 景観法、高さ最高限度有、日影制限有 | ||
| 備考・制限等 | 建築基準法22条区域 | ||
こだわり項目
- ※価格は物件の代金総額を表示しており、消費税が課税される場合は税込み価格です。(1,000円未満は切り上げ。)
税率は引き渡し時期により異なりますので、各物件の詳細につきましてはお問い合わせください。 - ※敷地権利が借地権のものは価格に権利金を含みます。
- ※制作中に内容が変更される場合もありますので、あらかじめご了承ください。
- ※購入の前には物件内容や契約条件についてご自身で十分な確認をしていただくようにお願いいたします。
- ※完成予想図はいずれも外構、植栽、外観等実際のものとは多少異なることがあります。
- ※CG合成の画像の場合、実際とは多少異なる場合があります。
周辺地図
周辺施設一覧
- ショッピングセンター
- スーパー
- コンビニ
- ドラッグストア
- ホームセンター
- 飲食店
- その他店舗
- 商店街
- 大学
- 専門学校
- 高校・高専
- 中学校
- 小学校
- 保育園
- 幼稚園
- 公民館・児童館
- 病院
- 郵便局
- 役所
- 図書館
- 金融機関
- 警察・消防
- 趣味・娯楽施設
- 公園・運動施設
- 周辺の街並み
- 駅
- その他
お問い合せ先
- 株式会社smartplus 取手
- お電話でのお問い合わせは
0120-513-135「ホームページを見た」とお問い合わせください - 茨城県取手市寺田4988
- 営業時間:9:00~18:00
- 免許番号:茨城県知事(1)第7396号
- トップページ
- 中古住宅をエリアから探す
- 野田市
- 日の出町
- ■野田市日の出町 長期優良住宅~築浅中古戸建て~■















