- トップページ
- 新築一戸建てをエリアから探す
- 印西市
- 草深
- ●印西市草深●
●印西市草深●
情報更新日:2026/04/23 次回更新予定日:2026/05/07 取引条件有効期限:2026/05/07
所在地千葉県印西市草深[周辺地図]
交 通北総線「千葉ニュータウン中央」駅徒歩33分





◆スマートプラスでは幅広いエリアで豊富な物件をご紹介可能♪
◆お客様のご希望に沿うお住まいも弊社ならきっと見つかります!
\住宅ローンならお任せください!最適な金融機関をご紹介いたします♪/
◆借入がある・転職したて・過去に金融事故があった・他社様でダメだった・・・
◆スマートプラスにぜひ一度ご相談ください!通過実績多数ございます♪
\お客様のご都合に合わせてご見学可能!送り迎えもご相談ください♪/
◆当日はもちろん、お仕事終わりの夜間やスキマ時間など短時間でもご案内可能♪
◆ご自宅や最寄り駅などへのご送迎もお任せください!
すべての画像
~新規物件が誕生です~ ・皆様お待たせいたしました。印西市草深に新規物件が誕生です。 ・このエリアでお探しの方は、まずはお気軽にお問い合わせくださいませ。お待ちしております。 (1号棟外観写真)
~完成物件もご案内可能~ ・ご案内時には実際の立地に加え、同メーカー・同仕様の完成物件もご案内可能です。 ・ぜひ現地と建物をご覧いただき、具体的にイメージしてみてくださいませ。 (1号棟外観写真)
~カースペース3台分ご用意~ ・3台分のカースペースがございますので、車通勤の方やご来客の多い方にもお勧めのお住まいです。 ・余裕の敷地で余裕の新生活をお過ごしいただけます。
~ベタ基礎でしっかりとした土台~ ・コンクリートの中に鉄筋を配し強度を高めた「ベタ基礎」を採用。 ・しっかりとした土台を造ったうえで、その上に建物が築造されていきます。 (1号棟外観写真)
~国が認めた長期優良住宅~ ・名の通り長期に亘り優れた性能が持続する長期優良住宅。 ・税制面での優遇などもございます。詳細は担当までお気軽にお問い合わせくださいませ。 (1号棟外観写真)
~地盤調査も実施済み~ ・建物建築前に地盤調査もしておりますので、安心して永くお住まいいただける住宅です。 ・アフターサービスも充実しておりますので、詳細はぜひお問合せくださいませ。 (1号棟外観写真)
~閑静な住宅街の立地~ ・周辺は閑静な住宅街となっておりますので、静かな暮らしをご実現いただけます。 ・前面道路の交通量も多くないので、小さなお子様がいるご家庭でもご安心ですね。 (1号棟外観写真)
~資金計画もお任せください~ ・ご見学はもちろん、住宅ローンなど資金面のご相談だけでもお気軽にどうぞ。 ・プロのアドバイザーがお客様にとって最適なプランをご提案させていただきます。 (1号棟外観写真)
~周辺環境もご案内いたします~ ・建物自体ももちろん大切ですが、暮らしていく上でとても大切な周辺環境。 ・ご見学時に周辺環境も併せてご案内させていただきますので、お気軽にご相談ください。 (1号棟外観写真)
~お問合せはお気軽に~ ・お仕事帰りの遅い時間や短時間のご案内、不動産会社に休みの多い水曜日などでもご対応可能です。 ・ぜひお気軽にお問合せくださいませ。お待ちしております! (1号棟外観写真)
~オプション工事もお任せください~ ・せっかくの良い住宅を更に良くする各種オプション工事。 ・住宅オプション協会加盟の当社なら様々なご提案が可能です。ぜひお気軽にご相談くださいませ。 (1号棟外観写真)
~新規物件が誕生です~ ・皆様お待たせいたしました。印西市草深に新規物件が誕生です。 ・このエリアでお探しの方は、まずはお気軽にお問い合わせくださいませ。お待ちしております。 (1号棟外観写真)
2号棟 ~新規物件が誕生です~ ・皆様お待たせいたしました。印西市草深に新規物件が誕生です。 ・このエリアでお探しの方は、まずはお気軽にお問い合わせくださいませ。お待ちしております。
3号棟 ~新規物件が誕生です~ ・皆様お待たせいたしました。印西市草深に新規物件が誕生です。 ・このエリアでお探しの方は、まずはお気軽にお問い合わせくださいませ。お待ちしております。
4号棟 ~新規物件が誕生です~ ・皆様お待たせいたしました。印西市草深に新規物件が誕生です。 ・このエリアでお探しの方は、まずはお気軽にお問い合わせくださいませ。お待ちしております。
1号棟 ~完成物件もご案内可能~ ・ご案内時には実際の立地に加え、同メーカー・同仕様の完成物件もご案内可能です。 ・ぜひ現地と建物をご覧いただき、具体的にイメージしてみてくださいませ。
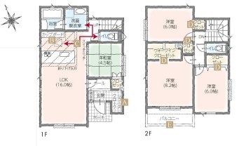
2号棟 ~使い勝手の良い4LDKプラン~ ・シンプルで使い勝手が良く、人気の高い4LDKのプランを採用。 ・収納もしっかりございますので、お家の中がスッキリと片付きます。
3号棟 ~使い勝手の良い4LDKプラン~ ・シンプルで使い勝手が良く、人気の高い4LDKのプランを採用。 ・収納もしっかりございますので、お家の中がスッキリと片付きます。
4号棟 ~完成物件もご案内可能~ ・ご案内時には実際の立地に加え、同メーカー・同仕様の完成物件もご案内可能です。 ・ぜひ現地と建物をご覧いただき、具体的にイメージしてみてくださいませ。
1号棟 ~使い勝手の良い4LDKプラン~ ・シンプルで使い勝手が良く、人気の高い4LDKのプランを採用。 ・収納もしっかりございますので、お家の中がスッキリと片付きます。
2号棟 ~カースペース3台分ご用意~ ・3台分のカースペースがございますので、車通勤の方やご来客の多い方にもお勧めのお住まいです。 ・余裕の敷地で余裕の新生活をお過ごしいただけます。
3号棟 ~カースペース3台分ご用意~ ・3台分のカースペースがございますので、車通勤の方やご来客の多い方にもお勧めのお住まいです。 ・余裕の敷地で余裕の新生活をお過ごしいただけます。
4号棟 ~使い勝手の良い4LDKプラン~ ・シンプルで使い勝手が良く、人気の高い4LDKのプランを採用。 ・収納もしっかりございますので、お家の中がスッキリと片付きます。
1号棟 ~カースペース3台分ご用意~ ・3台分のカースペースがございますので、車通勤の方やご来客の多い方にもお勧めのお住まいです。 ・余裕の敷地で余裕の新生活をお過ごしいただけます。
2号棟 ~完成物件もご案内可能~ ・ご案内時には実際の立地に加え、同メーカー・同仕様の完成物件もご案内可能です。 ・ぜひ現地と建物をご覧いただき、具体的にイメージしてみてくださいませ。
3号棟 ~完成物件もご案内可能~ ・ご案内時には実際の立地に加え、同メーカー・同仕様の完成物件もご案内可能です。 ・ぜひ現地と建物をご覧いただき、具体的にイメージしてみてくださいませ。
4号棟 ~ベタ基礎でしっかりとした土台~ ・コンクリートの中に鉄筋を配し強度を高めた「ベタ基礎」を採用。 ・しっかりとした土台を造ったうえで、その上に建物が築造されていきます。
1号棟 ~ベタ基礎でしっかりとした土台~ ・コンクリートの中に鉄筋を配し強度を高めた「ベタ基礎」を採用。 ・しっかりとした土台を造ったうえで、その上に建物が築造されていきます。
2号棟 ~ベタ基礎でしっかりとした土台~ ・コンクリートの中に鉄筋を配し強度を高めた「ベタ基礎」を採用。 ・しっかりとした土台を造ったうえで、その上に建物が築造されていきます。
3号棟 ~ベタ基礎でしっかりとした土台~ ・コンクリートの中に鉄筋を配し強度を高めた「ベタ基礎」を採用。 ・しっかりとした土台を造ったうえで、その上に建物が築造されていきます。
4号棟 ~国が認めた長期優良住宅~ ・名の通り長期に亘り優れた性能が持続する長期優良住宅。 ・税制面での優遇などもございます。詳細は担当までお気軽にお問い合わせくださいませ。
1号棟 ~国が認めた長期優良住宅~ ・名の通り長期に亘り優れた性能が持続する長期優良住宅。 ・税制面での優遇などもございます。詳細は担当までお気軽にお問い合わせくださいませ。
2号棟 ~国が認めた長期優良住宅~ ・名の通り長期に亘り優れた性能が持続する長期優良住宅。 ・税制面での優遇などもございます。詳細は担当までお気軽にお問い合わせくださいませ。
3号棟 ~国が認めた長期優良住宅~ ・名の通り長期に亘り優れた性能が持続する長期優良住宅。 ・税制面での優遇などもございます。詳細は担当までお気軽にお問い合わせくださいませ。
4号棟 ~地盤調査も実施済み~ ・建物建築前に地盤調査もしておりますので、安心して永くお住まいいただける住宅です。 ・アフターサービスも充実しておりますので、詳細はぜひお問合せくださいませ。
1号棟 ~地盤調査も実施済み~ ・建物建築前に地盤調査もしておりますので、安心して永くお住まいいただける住宅です。 ・アフターサービスも充実しておりますので、詳細はぜひお問合せくださいませ。
~地盤調査も実施済み~ ・建物建築前に地盤調査もしておりますので、安心して永くお住まいいただける住宅です。 ・アフターサービスも充実しておりますので、詳細はぜひお問合せくださいませ。 (1号棟外観写真)
3号棟 ~地盤調査も実施済み~ ・建物建築前に地盤調査もしておりますので、安心して永くお住まいいただける住宅です。 ・アフターサービスも充実しておりますので、詳細はぜひお問合せくださいませ。
4号棟 ~閑静な住宅街の立地~ ・周辺は閑静な住宅街となっておりますので、静かな暮らしをご実現いただけます。 ・前面道路の交通量も多くないので、小さなお子様がいるご家庭でもご安心ですね。
1号棟 ~閑静な住宅街の立地~ ・周辺は閑静な住宅街となっておりますので、静かな暮らしをご実現いただけます。 ・前面道路の交通量も多くないので、小さなお子様がいるご家庭でもご安心ですね。
担当スタッフより

- 小川 貴大
- 印西市のお住まいなら「スマートプラス」へ♪他社様でローンがダメだった・転職したて・頭金なし・借入がある・・・などでもローン通過実績あり!資金面のご相談だけでもお気軽にどうぞ♪
各棟情報
物件詳細情報
物件No.20000447965
| 所在地 | 千葉県印西市草深 | ||
|---|---|---|---|
| 交通 | 北総線「千葉ニュータウン中央」駅徒歩33分 北総線「印西牧の原」駅徒歩41分 北総線「印旛日本医大」駅徒歩87分 |
||
| 間取 | 4LDK~4LDK | ||
| 土地面積 | 184.53m² ~ 192.75m² 実測 | ||
| 建物面積 | 99.36m² ~ 108.88m² 実測 | ||
| 販売戸数 | 4戸 | 総戸数 | 全4戸 |
| 構造・規模 | 木造 2階建て | 築年・入居 | 2026年5月上旬 |
| バルコニー | 南向き | 建物現況 | 建築中 |
| 建築確認番号 | 第25UDI1C建07717号、他、他 | 駐車スペース | 3台(カースペース:並列) |
| 引渡時期 | 期日指定有(2026年5月下旬) | 国土法届出 | 不要 |
| 地目 | 宅地 | 用途地域 | 無指定地域 |
| 建ぺい率 | 50% | 容積率 | 100% |
| 都市計画 | 市街化調整区域 | 建築許可事由 | 開発許可等による分譲地内 |
| 権利種類 | 所有権 | 接道 | 南側6M公道に接道 東側7.35M公道に接道 |
| 小学校区 | 印西市立高花小学校(1800m) | 中学校区 | 印西市立船穂中学校(1600m) |
| 取引態様 | 媒介 | ||
| 設備 | 公営水道、個別浄化槽、都市ガス | ||
| その他制限事項 | 景観法 | ||
こだわり項目
- ※価格は物件の代金総額を表示しており、消費税が課税される場合は税込み価格です。(1,000円未満は切り上げ。)
税率は引き渡し時期により異なりますので、各物件の詳細につきましてはお問い合わせください。 - ※敷地権利が借地権のものは価格に権利金を含みます。
- ※制作中に内容が変更される場合もありますので、あらかじめご了承ください。
- ※購入の前には物件内容や契約条件についてご自身で十分な確認をしていただくようにお願いいたします。
- ※完成予想図はいずれも外構、植栽、外観等実際のものとは多少異なることがあります。
- ※CG合成の画像の場合、実際とは多少異なる場合があります。
周辺地図
周辺施設一覧
- ショッピングセンター
- スーパー
- コンビニ
- ドラッグストア
- ホームセンター
- 飲食店
- その他店舗
- 商店街
- 大学
- 専門学校
- 高校・高専
- 中学校
- 小学校
- 保育園
- 幼稚園
- 公民館・児童館
- 病院
- 郵便局
- 役所
- 図書館
- 金融機関
- 警察・消防
- 趣味・娯楽施設
- 公園・運動施設
- 周辺の街並み
- 駅
- その他
お問い合せ先
- 株式会社smartplus 取手
- お電話でのお問い合わせは
0120-513-135「ホームページを見た」とお問い合わせください - 茨城県取手市寺田4988
- 営業時間:9:00~18:00
- 免許番号:茨城県知事(1)第7396号














