- トップページ
- 新築一戸建てをエリアから探す
- つくばみらい市
- 小絹
- つくばみらい市小絹第4
つくばみらい市小絹第4
情報更新日:2026/04/21 次回更新予定日:2026/05/05 取引条件有効期限:2026/05/05
所在地茨城県つくばみらい市小絹[周辺地図]
交 通関東鉄道常総線「小絹」駅徒歩13分





◆スマートプラスでは幅広いエリアで豊富な物件をご紹介可能♪
◆お客様のご希望に沿うお住まいも弊社ならきっと見つかります!
\住宅ローンならお任せください!最適な金融機関をご紹介いたします♪/
◆借入がある・転職したて・過去に金融事故があった・他社様でダメだった・・・
◆スマートプラスにぜひ一度ご相談ください!通過実績多数ございます♪
\お客様のご都合に合わせてご見学可能!送り迎えもご相談ください♪/
◆当日はもちろん、お仕事終わりの夜間やスキマ時間など短時間でもご案内可能♪
◆ご自宅や最寄り駅などへのご送迎もお任せください!
すべての画像
~新規物件が誕生です~ ・皆様お待たせいたしました。つくばみらい市小絹に新規物件が誕生です。 ・このエリアでお探しの方は、まずはお気軽にお問い合わせくださいませ。お待ちしております。 (1号棟)
~全居室南向きの間取り~ ・各居室が南向きなので穏やかな陽の入る陽当り良好な仕様。 ・明るい空間でくつろぎのお時間をお過ごしいただけます。 (1号棟)
~カースペース2台以上確保~ ・各棟カースペースが2台以上ございますので、車通勤の方にもお勧めのプランとなっております。 ・余裕の敷地で余裕のある新生活をお過ごしいただけます。
~完成物件もご案内可能~ ・ご案内時には実際の立地に加え、同メーカー・同仕様の完成物件もご案内可能です。 ・ぜひ現地と建物をご覧いただき、具体的にイメージしてみてくださいませ。 (1号棟)
~ご家族を守る「耐震等級3」~ ・住宅性能評価において「耐震等級3」を取得。地震に強い家であることが証明されております。 ・倒壊の恐れが低くなりますので、地震保険が半額になるメリットも。 (1号棟)
~ベタ基礎でしっかりとした土台~ ・コンクリートの中に鉄筋を配し強度を高めた「ベタ基礎」を採用。 ・しっかりとした土台を造ったうえで、その上に建物が築造されていきます。 (1号棟)
~地盤調査も実施済み~ ・建物建築前に地盤調査もしておりますので、安心して永くお住まいいただける住宅です。 ・アフターサービスも充実しておりますので、詳細はぜひお問合せくださいませ。 (1号棟)
~維持管理対策も取られております~ ・住宅性能評価において「維持管理対策等級3」を取得。 ・各点検口などが配置され、住宅のメンテナンスがしやすい造りとなっております。 (1号棟)
~ホルムアルデヒド対策も~ ・住宅性能評価において「ホルムアルデヒド対策等級3」を取得。 ・有害物質の発散を抑える事で健康的な生活が送れます。 (1号棟)
~オプション工事もお任せください~ ・せっかくの良い住宅を更に良くする各種オプション工事。 ・住宅オプション協会加盟の当社なら様々なご提案が可能です。ぜひお気軽にご相談くださいませ。 (1号棟)
~資金計画もお任せください~ ・ご見学はもちろん、住宅ローンなど資金面のご相談だけでもお気軽にどうぞ。 ・プロのアドバイザーがお客様にとって最適なプランをご提案させていただきます。 (1号棟)
~お問合せはお気軽に~ ・お仕事帰りの遅い時間や短時間のご案内、不動産会社に休みの多い水曜日などでもご対応可能です。 ・ぜひお気軽にお問合せくださいませ。お待ちしております!
~リビングイン階段を採用~ ・リビングイン階段なので2階へ行く際、降りる際に必ずリビングを通る「ご家族の顔が見える」仕様。 ・家族の距離が近づく間取となっております。 (2号棟)
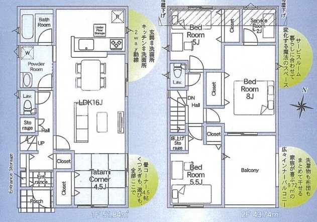
~サービスルームのあるプランを採用~ ・2帖分のサービスルームをご用意。窓があるので換気もできて快適です。 ・テレワークスペースとして、物置として、など様々な用途にご利用いただけます。 (3号棟)
~「畳コーナー」のあるLDK~ ・リビング脇に和室とは違う「畳コーナー」をご用意。仕切りが無く、一角が畳になっている仕様です。 ・お子様を寝かしつけたり、様々な用途にご利用可能。 (4号棟)
~収納豊富なプランを採用~ ・ウォークインクローゼットなど収納豊富なプランを採用。家の中がスッキリと片付きます。 ・今のお住まいと収納力をぜひ比較してみてください。 (5号棟)
1号棟 ~新規物件が誕生です~ ・皆様お待たせいたしました。つくばみらい市小絹に新規物件が誕生です。 ・このエリアでお探しの方は、まずはお気軽にお問い合わせくださいませ。お待ちしております。
2号棟 ~新規物件が誕生です~ ・皆様お待たせいたしました。つくばみらい市小絹に新規物件が誕生です。 ・このエリアでお探しの方は、まずはお気軽にお問い合わせくださいませ。お待ちしております。
3号棟 ~新規物件が誕生です~ ・皆様お待たせいたしました。つくばみらい市小絹に新規物件が誕生です。 ・このエリアでお探しの方は、まずはお気軽にお問い合わせくださいませ。お待ちしております。
4号棟 ~新規物件が誕生です~ ・皆様お待たせいたしました。つくばみらい市小絹に新規物件が誕生です。 ・このエリアでお探しの方は、まずはお気軽にお問い合わせくださいませ。お待ちしております。
5号棟 ~新規物件が誕生です~ ・皆様お待たせいたしました。つくばみらい市小絹に新規物件が誕生です。 ・このエリアでお探しの方は、まずはお気軽にお問い合わせくださいませ。お待ちしております。
1号棟 ~全居室南向きの間取り~ ・各居室が南向きなので穏やかな陽の入る陽当り良好な仕様。 ・明るい空間でくつろぎのお時間をお過ごしいただけます。
2号棟 ~リビングイン階段を採用~ ・リビングイン階段なので2階へ行く際、降りる際に必ずリビングを通る「ご家族の顔が見える」仕様。 ・家族の距離が近づく間取となっております。
3号棟 ~サービスルームのあるプランを採用~ ・2帖分のサービスルームをご用意。窓があるので換気もできて快適です。 ・テレワークスペースとして、物置として、など様々な用途にご利用いただけます。
4号棟 ~「畳コーナー」のあるLDK~ ・リビング脇に和室とは違う「畳コーナー」をご用意。仕切りが無く、一角が畳になっている仕様です。 ・お子様を寝かしつけたり、様々な用途にご利用可能。
5号棟 ~収納豊富なプランを採用~ ・ウォークインクローゼットなど収納豊富なプランを採用。家の中がスッキリと片付きます。 ・今のお住まいと収納力をぜひ比較してみてください。
1号棟 ~完成物件もご案内可能~ ・ご案内時には実際の立地に加え、同メーカー・同仕様の完成物件もご案内可能です。 ・ぜひ現地と建物をご覧いただき、具体的にイメージしてみてくださいませ。
2号棟 ~完成物件もご案内可能~ ・ご案内時には実際の立地に加え、同メーカー・同仕様の完成物件もご案内可能です。 ・ぜひ現地と建物をご覧いただき、具体的にイメージしてみてくださいませ。
3号棟 ~完成物件もご案内可能~ ・ご案内時には実際の立地に加え、同メーカー・同仕様の完成物件もご案内可能です。 ・ぜひ現地と建物をご覧いただき、具体的にイメージしてみてくださいませ。
4号棟 ~カースペース2台以上確保~ ・各棟カースペースが2台以上ございますので、車通勤の方にもお勧めのプランとなっております。 ・余裕の敷地で余裕のある新生活をお過ごしいただけます。
5号棟 ~完成物件もご案内可能~ ・ご案内時には実際の立地に加え、同メーカー・同仕様の完成物件もご案内可能です。 ・ぜひ現地と建物をご覧いただき、具体的にイメージしてみてくださいませ。
1号棟 ~ご家族を守る「耐震等級3」~ ・住宅性能評価において「耐震等級3」を取得。地震に強い家であることが証明されております。 ・倒壊の恐れが低くなりますので、地震保険が半額になるメリットも。
2号棟 ~ご家族を守る「耐震等級3」~ ・住宅性能評価において「耐震等級3」を取得。地震に強い家であることが証明されております。 ・倒壊の恐れが低くなりますので、地震保険が半額になるメリットも。
3号棟 ~ご家族を守る「耐震等級3」~ ・住宅性能評価において「耐震等級3」を取得。地震に強い家であることが証明されております。 ・倒壊の恐れが低くなりますので、地震保険が半額になるメリットも。
4号棟 ~完成物件もご案内可能~ ・ご案内時には実際の立地に加え、同メーカー・同仕様の完成物件もご案内可能です。 ・ぜひ現地と建物をご覧いただき、具体的にイメージしてみてくださいませ。
5号棟 ~ご家族を守る「耐震等級3」~ ・住宅性能評価において「耐震等級3」を取得。地震に強い家であることが証明されております。 ・倒壊の恐れが低くなりますので、地震保険が半額になるメリットも。
1号棟 ~ベタ基礎でしっかりとした土台~ ・コンクリートの中に鉄筋を配し強度を高めた「ベタ基礎」を採用。 ・しっかりとした土台を造ったうえで、その上に建物が築造されていきます。
2号棟 ~地盤調査も実施済み~ ・建物建築前に地盤調査もしておりますので、安心して永くお住まいいただける住宅です。 ・アフターサービスも充実しておりますので、詳細はぜひお問合せくださいませ。
3号棟 ~ベタ基礎でしっかりとした土台~ ・コンクリートの中に鉄筋を配し強度を高めた「ベタ基礎」を採用。 ・しっかりとした土台を造ったうえで、その上に建物が築造されていきます。
4号棟 ~ご家族を守る「耐震等級3」~ ・住宅性能評価において「耐震等級3」を取得。地震に強い家であることが証明されております。 ・倒壊の恐れが低くなりますので、地震保険が半額になるメリットも。
担当スタッフより

- 遠藤 晴子
- つくばみらい市のお住まいなら「スマートプラス」へ♪他社様でローンがダメだった・転職したて・頭金なし・借入がある・・・などでもローン通過実績あり!資金面のご相談だけでもお気軽にどうぞ♪
各棟情報
物件詳細情報
物件No.20000451598
| 所在地 | 茨城県つくばみらい市小絹 | ||
|---|---|---|---|
| 交通 | 関東鉄道常総線「小絹」駅徒歩13分 関東鉄道常総線「新守谷」駅2.7km つくばエクスプレス「守谷」駅4.6km |
||
| 間取 | 3LDK~4LDK | ||
| 土地面積 | 151.18m² ~ 220.03m² 実測 | ||
| 建物面積 | 69.36m² ~ 995.58m² | ||
| 販売戸数 | 5戸 | 総戸数 | 全5戸 |
| 構造・規模 | 木造 2階建て | 築年・入居 | 2026年5月 |
| バルコニー | 南向き | 建築確認番号 | 第25UDI1W建11834号、他 |
| 駐車スペース | 2台可(カースペース) | 引渡時期 | 期日指定有(2026年5月) |
| 地目 | 宅地 | 用途地域 | 第一種低層住居専用地域 |
| 建ぺい率 | 40% | 容積率 | 80% |
| 都市計画 | 市街化区域 | 権利種類 | 所有権 |
| 接道 | 西側4M公道に接道 | 小学校区 | つくばみらい市立小絹小学校(650m) |
| 中学校区 | つくばみらい市立小絹中学校(750m) | 取引態様 | 媒介 |
| 設備 | 公営水道、本下水、個別LPG | ||
| その他制限事項 | 景観法、高さ最高限度有、日影制限有 | ||
| 備考・制限等 | 建築基準法第22条区域 | ||
こだわり項目
- ※価格は物件の代金総額を表示しており、消費税が課税される場合は税込み価格です。(1,000円未満は切り上げ。)
税率は引き渡し時期により異なりますので、各物件の詳細につきましてはお問い合わせください。 - ※敷地権利が借地権のものは価格に権利金を含みます。
- ※制作中に内容が変更される場合もありますので、あらかじめご了承ください。
- ※購入の前には物件内容や契約条件についてご自身で十分な確認をしていただくようにお願いいたします。
- ※完成予想図はいずれも外構、植栽、外観等実際のものとは多少異なることがあります。
- ※CG合成の画像の場合、実際とは多少異なる場合があります。
周辺地図
周辺施設一覧
- ショッピングセンター
- スーパー
- コンビニ
- ドラッグストア
- ホームセンター
- 飲食店
- その他店舗
- 商店街
- 大学
- 専門学校
- 高校・高専
- 中学校
- 小学校
- 保育園
- 幼稚園
- 公民館・児童館
- 病院
- 郵便局
- 役所
- 図書館
- 金融機関
- 警察・消防
- 趣味・娯楽施設
- 公園・運動施設
- 周辺の街並み
- 駅
- その他
お問い合せ先
- 株式会社smartplus 取手
- お電話でのお問い合わせは
0120-513-135「ホームページを見た」とお問い合わせください - 茨城県取手市寺田4988
- 営業時間:9:00~18:00
- 免許番号:茨城県知事(1)第7396号













