- トップページ
- 中古住宅をエリアから探す
- 柏市
- 小青田
- ■柏市小青田 戸建■





◆スマートプラスでは幅広いエリアで豊富な物件をご紹介可能♪
◆お客様のご希望に沿うお住まいも弊社ならきっと見つかります!
\住宅ローンならお任せください!最適な金融機関をご紹介いたします♪/
◆借入がある・転職したて・過去に金融事故があった・他社様でダメだった・・・
◆スマートプラスにぜひ一度ご相談ください!通過実績多数ございます♪
\お客様のご都合に合わせてご見学可能!送り迎えもご相談ください♪/
◆当日はもちろん、お仕事終わりの夜間やスキマ時間など短時間でもご案内可能♪
◆ご自宅や最寄り駅などへのご送迎もお任せください!
すべての画像
~閑静な住宅街の立地~ ・周辺は閑静な住宅街となっておりますので、静かな暮らしをご実現いただけます。 ・前面道路の交通量も多くないので、小さなお子様がいるご家庭でもご安心ですね。
~ナチュラルな色彩のLDK~ ・自然な風合いの色味で纏められたLDKは家具のコーディネートもしやすくなっております。 ・どんなインテリアにするか、考えるだけでも楽しくなりますね。
~全居室南向きの間取り~ ・各居室が南向きなので穏やかな陽の入る陽当り良好な仕様。 ・明るい空間でくつろぎのお時間をお過ごしいただけます。
~カースペース2台分ご用意~ ・2台分のカースペースがございますので、車通勤の方やご来客の多い方にもお勧めのお住まいです。 ・余裕の敷地で余裕の新生活をお過ごしいただけます。
~使い勝手の良いシステムキッチン~ ・料理がしやすい設計のキッチンでお料理もはかどりますね。 ・もちろんキッチン下部は収納になっておりますので、フライパンなども収納可能です。
~人気のカウンターキッチン~ ・キッチンは人気のカウンタータイプを採用。「ご家族の顔が見える」造りです。 ・蛇口に浄水器が内蔵されているなど機能面でも優れた仕様です。
~暖房乾燥機付きの浴室~ ・ヒートショック対策にもなる浴室暖房を標準装備。冬場でも暖かくしてからご入浴が可能です。 ・もちろん乾燥機も付いておりますので、雨の日でも洗濯物を干せますよ。
~人気の三面鏡を採用~ ・洗面台は三面鏡仕様なので鏡の角度を変える事で頭の後ろの方までご確認可能です。 ・鏡の裏が収納になっておりますので、洗面台周りもスッキリと片付きます。
~やはり便利なタンク式トイレ~ ・最近はタンクレストイレもございますが、タンク式の場合は停電時もお水を流すことが可能。 ・故障時なども比較的費用が安くなるなど、メリットが多くなります。
~穏やかな陽の入るLDK~ ・大きな窓のあるLDKは陽当りも良好で明るい空間となっております。 ・ご家族団らんなど過ごす時間の多いLDKが明るいのは嬉しいポイントですね。
~2面採光の明るいお部屋~ ・洋室は2面採光とする事で穏やかな陽の入る明るい空間となっております。 ・くつろぎのプライベート時間を明るい空間で穏やかにお過ごしいただけます。
~ナチュラルな色彩のLDK~ ・自然な風合いの色味で纏められたLDKは家具のコーディネートもしやすくなっております。 ・どんなインテリアにするか、考えるだけでも楽しくなりますね。
~2面採光の明るいお部屋~ ・和室は2面採光とする事で穏やかな陽の入る明るい空間となっております。 ・くつろぎのプライベート時間を明るい空間で穏やかにお過ごしいただけます。
~収納豊富な洋室~ ・各居室に備え付けの収納をご用意。タンスなどを置く場合と比べ出っ張らないので部屋の中を有効のご活用いただけます。 ・収納の広さなどぜひ現地でご確認くださいませ。
~自然な風合いの洋室~ ・ナチュラルな色彩で纏められた洋室は家具のコーディネートもしやすくなっております。 ・どんな家具にするか考えるだけでも楽しくなってきますね。
~穏やかな陽の入る玄関~ ・玄関ドアにガラス部分を設ける事で穏やかな陽の入る玄関に。 ・ご家族やご来客を明るい空間で出迎えてくれます。
~十分な広さのある前面道路~ ・前面道路は約6.0mございますので、お車でのすれ違いも楽々で余計なストレスがかかりません。 ・日々お車での移動が多い方には大切なポイントですね。
~開放感ある角地のお住まい~ ・2方向が空く事で開放感のある角地に位置しております。 ・窮屈な感じが無く、ゆったりと暮らせるこの魅力をぜひ現地でご体感くださいませ。
~洗濯物も干しやすいバルコニー~ ・バルコニーには物干し竿受けが標準装備されております。 ・テラス屋根等のオプションもお気軽にご相談くださいませ。
~資金計画もお任せください~ ・ご見学はもちろん、住宅ローンなど資金面のご相談だけでもお気軽にどうぞ。 ・プロのアドバイザーがお客様にとって最適なプランをご提案させていただきます。
~お住まいの顔「玄関」~ ・毎日お出かけの際もご帰宅の際も通る玄関。 ・ドアの交換や鍵の交換・追加などもお気軽にご相談くださいませ。
~周辺環境もご案内いたします~ ・建物自体ももちろん大切ですが、暮らしていく上でとても大切な周辺環境。 ・ご見学時に周辺環境も併せてご案内させていただきますので、お気軽にご相談ください。
~デザイン性に優れた玄関周り~ ・お洒落なデザインの玄関周りを採用する事でお住まいの「顔」の印象が大きく変わります。 ・毎日帰宅した際に嬉しくなる仕様です。
~駐車場は2台分ご用意~ ・駐車場は2台分ございますので、車通勤の方や複数台お持ちの方にもお勧めのお住まいです。 ・カーポートなどのオプションもお気軽にご相談くださいませ。
担当スタッフより

- 三皷 亘
- 柏市のお住まいなら「スマートプラス」へ♪他社様でローンがダメだった・転職したて・頭金なし・借入がある・・・などでもローン通過実績あり!資金面のご相談だけでもお気軽にどうぞ♪
物件詳細情報
物件No.20000451967
| 所在地 | 千葉県柏市小青田4丁目 | ||
|---|---|---|---|
| 交通 | つくばエクスプレス「柏たなか」駅徒歩13分 つくばエクスプレス「柏の葉キャンパス」駅徒歩48分 つくばエクスプレス「流山おおたかの森」駅徒歩92分 |
||
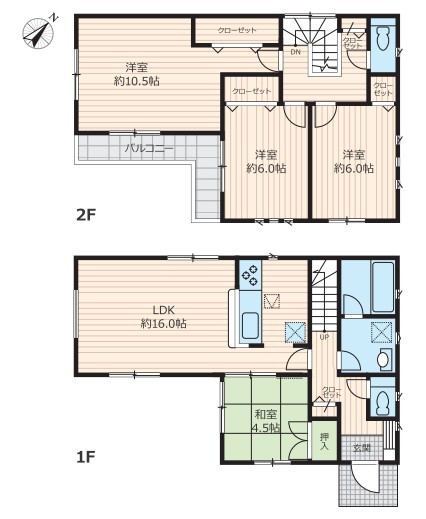
| 間取 | 4LDK (LDK16.0帖、和室4.5帖、洋室10.5帖、洋室6.0帖、洋室6.0帖) | ||
| 土地面積 | 152.24m² 公簿 | ||
| 建物面積 | 100.44m² 公簿 | ||
| 構造・規模 | 木造 2階建て | 築年月 | 2018年1月築 |
| バルコニー | 南東向き | 国土法届出 | 不要 |
| 地目 | 宅地 | 用途地域 | 第二種低層住居専用地域 |
| 建ぺい率 | 50% | 容積率 | 100% |
| 都市計画 | 市街化区域 | 駐車スペース | 2台可(カースペース:並列) |
| 現況 | 居住中 | 引渡時期 | 相談 |
| 引渡条件 | 現況渡し | 権利種類 | 所有権 |
| 接道 | 南東側6M公道に9.5M接道 北東側6M公道に8.5M接道 |
小学校区 | 柏市立田中北小学校(750m) |
| 中学校区 | 柏市立田中中学校(1700m) | 取引態様 | 専任媒介 |
| 設備 | 公営水道、本下水、オール電化 | ||
| その他制限事項 | 景観法、宅地造成工事規制区域、高さ最高限度有、日影制限有 | ||
| 備考・制限等 | 建築基準法22条区域 | ||
こだわり項目
- ※価格は物件の代金総額を表示しており、消費税が課税される場合は税込み価格です。(1,000円未満は切り上げ。)
税率は引き渡し時期により異なりますので、各物件の詳細につきましてはお問い合わせください。 - ※敷地権利が借地権のものは価格に権利金を含みます。
- ※制作中に内容が変更される場合もありますので、あらかじめご了承ください。
- ※購入の前には物件内容や契約条件についてご自身で十分な確認をしていただくようにお願いいたします。
- ※完成予想図はいずれも外構、植栽、外観等実際のものとは多少異なることがあります。
- ※CG合成の画像の場合、実際とは多少異なる場合があります。
周辺地図
周辺施設一覧
- ショッピングセンター
- スーパー
- コンビニ
- ドラッグストア
- ホームセンター
- 飲食店
- その他店舗
- 商店街
- 大学
- 専門学校
- 高校・高専
- 中学校
- 小学校
- 保育園
- 幼稚園
- 公民館・児童館
- 病院
- 郵便局
- 役所
- 図書館
- 金融機関
- 警察・消防
- 趣味・娯楽施設
- 公園・運動施設
- 周辺の街並み
- 駅
- その他
お問い合せ先
- 株式会社smartplus 取手
- お電話でのお問い合わせは
0120-513-135「ホームページを見た」とお問い合わせください - 茨城県取手市寺田4988
- 営業時間:9:00~18:00
- 免許番号:茨城県知事(1)第7396号















