- トップページ
- 新築一戸建てをエリアから探す
- 土浦市
- 生田町
- 2号棟 土浦市生田町第4





◆スマートプラスでは幅広いエリアで豊富な物件をご紹介可能♪
◆お客様のご希望に沿うお住まいも弊社ならきっと見つかります!
\住宅ローンならお任せください!最適な金融機関をご紹介いたします♪/
◆借入がある・転職したて・過去に金融事故があった・他社様でダメだった・・・
◆スマートプラスにぜひ一度ご相談ください!通過実績多数ございます♪
\お客様のご都合に合わせてご見学可能!送り迎えもご相談ください♪/
◆当日はもちろん、お仕事終わりの夜間やスキマ時間など短時間でもご案内可能♪
◆ご自宅や最寄り駅などへのご送迎もお任せください!
すべての画像
~新規物件が誕生です~ ・皆様お待たせいたしました。土浦市生田町に新規物件が誕生です。 ・このエリアでお探しの方は、まずはお気軽にお問い合わせくださいませ。お待ちしております。
~水回り集中プランを採用~ ・キッチン・洗面など水回りを集中させることで家事のしやすい間取。 ・日々の事なので家事導線もご見学の際にぜひチェックしてみてください。
~カースペース2台分ご用意~ ・2台分のカースペースがございますので、車通勤の方やご来客の多い方にもお勧めのお住まいです。 ・余裕の敷地で余裕の新生活をお過ごしいただけます。
~完成物件もご案内可能~ ・ご案内時には実際の立地に加え、同メーカー・同仕様の完成物件もご案内可能です。 ・ぜひ現地と建物をご覧いただき、具体的にイメージしてみてくださいませ。
~ベタ基礎でしっかりとした土台~ ・コンクリートの中に鉄筋を配し強度を高めた「ベタ基礎」を採用。 ・しっかりとした土台を造ったうえで、その上に建物が築造されていきます。
~地盤調査も実施済み~ ・建物建築前に地盤調査もしておりますので、安心して永くお住まいいただける住宅です。 ・アフターサービスも充実しておりますので、詳細はぜひお問合せくださいませ。
~ご家族を守る「耐震等級3」~ ・住宅性能評価において「耐震等級3」を取得。地震に強い家であることが証明されております。 ・倒壊の恐れが低くなりますので、地震保険が半額になるメリットも。
~オプション工事もお任せください~ ・せっかくの良い住宅を更に良くする各種オプション工事。 ・住宅オプション協会加盟の当社なら様々なご提案が可能です。ぜひお気軽にご相談くださいませ。
~維持管理対策も取られております~ ・住宅性能評価において「維持管理対策等級3」を取得。 ・各点検口などが配置され、住宅のメンテナンスがしやすい造りとなっております。
~閑静な住宅街の立地~ ・周辺は閑静な住宅街となっておりますので、静かな暮らしをご実現いただけます。 ・前面道路の交通量も多くないので、小さなお子様がいるご家庭でもご安心ですね。
~周辺環境もご案内いたします~ ・建物自体ももちろん大切ですが、暮らしていく上でとても大切な周辺環境。 ・ご見学時に周辺環境も併せてご案内させていただきますので、お気軽にご相談ください。
~お問合せはお気軽に~ ・お仕事帰りの遅い時間や短時間のご案内、不動産会社に休みの多い水曜日などでもご対応可能です。 ・ぜひお気軽にお問合せくださいませ。お待ちしております!
土浦小学校 950m
土浦第一中学校 500m
イオンモール土浦 2000m
ヨークベニマル 土浦生田町店 170m
担当スタッフより

- 遠藤 晴子
- 土浦市のお住まいなら「スマートプラス」へ♪他社様でローンがダメだった・転職したて・頭金なし・借入がある・・・などでもローン通過実績あり!資金面のご相談だけでもお気軽にどうぞ♪
各棟情報
物件詳細情報
物件No.20000435874-005
| 所在地 | 茨城県土浦市生田町 | ||
|---|---|---|---|
| 交通 | 常磐線「土浦」駅徒歩22分 常磐線「荒川沖」駅7.1km つくばエクスプレス「つくば」駅7.8km |
||
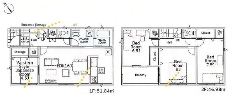
| 間取 | 4LDK (LDK16帖、洋室8帖、洋室7.5帖、洋室6.5帖、和室4.5帖) | ||
| 土地面積 | 203.43m² 実測 | ||
| 建物面積 | 98.82m² (別途ルーフバルコニー6.48平米) | ||
| 販売戸数 | 6戸 | 総戸数 | 全7戸 |
| 構造・規模 | 木造 2階建て | 築年・入居 | 2026年4月 |
| バルコニー | 南西向き | 建物現況 | 建築中 |
| 建築確認番号 | 第25UDI1W建09522号 | 駐車スペース | 2台可(カースペース) |
| 引渡時期 | 期日指定有(2026年4月) | 地目 | 宅地 |
| 用途地域 | 商業地域 | 建ぺい率 | 80% |
| 容積率 | 400% | 都市計画 | 市街化区域 |
| 権利種類 | 所有権 | 接道 | 西側5.7M道路に接道 |
| 小学校区 | 土浦小学校(950m) | 中学校区 | 土浦第一中学校(500m) |
| 取引態様 | 媒介 | ||
| 設備 | 公営水道、本下水、都市ガス | ||
| その他制限事項 | 景観法 | ||
| 備考・制限等 | 建築基準法第22条区域 | ||
こだわり項目
- ※価格は物件の代金総額を表示しており、消費税が課税される場合は税込み価格です。(1,000円未満は切り上げ。)
税率は引き渡し時期により異なりますので、各物件の詳細につきましてはお問い合わせください。 - ※敷地権利が借地権のものは価格に権利金を含みます。
- ※制作中に内容が変更される場合もありますので、あらかじめご了承ください。
- ※購入の前には物件内容や契約条件についてご自身で十分な確認をしていただくようにお願いいたします。
- ※完成予想図はいずれも外構、植栽、外観等実際のものとは多少異なることがあります。
- ※CG合成の画像の場合、実際とは多少異なる場合があります。
周辺地図
周辺施設一覧
- ショッピングセンター
- スーパー
- コンビニ
- ドラッグストア
- ホームセンター
- 飲食店
- その他店舗
- 商店街
- 大学
- 専門学校
- 高校・高専
- 中学校
- 小学校
- 保育園
- 幼稚園
- 公民館・児童館
- 病院
- 郵便局
- 役所
- 図書館
- 金融機関
- 警察・消防
- 趣味・娯楽施設
- 公園・運動施設
- 周辺の街並み
- 駅
- その他
お問い合せ先
- 株式会社smartplus 取手
- お電話でのお問い合わせは
0120-513-135「ホームページを見た」とお問い合わせください - 茨城県取手市寺田4988
- 営業時間:9:00~18:00
- 免許番号:茨城県知事(1)第7396号
- トップページ
- 新築一戸建てをエリアから探す
- 土浦市
- 生田町
- 2号棟 土浦市生田町第4















